EasyManua.ls Logo

Mitsubishi SRK 35ZS-W

Mitsubishi SRK 35ZS-W
81 pages
To Next Page IconTo Next Page
To Next Page IconTo Next Page
To Previous Page IconTo Previous Page
To Previous Page IconTo Previous Page
Loading...
-
23
-
'18 • SRK-T-250
SRC20ZS-W
Model name
Power cable, indoor-outdoor connecting wires
Switchgear or circuit breaker capacity should be chosen according to national or regional electricity
The power cable specifications are based on the assumption that a metal or plastic conduit is used
with no more than three cables contained in a conduit and a voltage drop is 2
. For an installation
falling outside of these conditions, please follow the national or regional electricity regulations.
SRC25ZS-W 2.0mm x 3 22 1.5mm x 4
SRC35ZS-W
9
The wire numbers include earth wireYellowGreen).
*
2
2
[ ]
2
N
regulations.
MAX running current Power cable
wire size x number*A
Power cable length
m
Connecting cable
wire size x number*
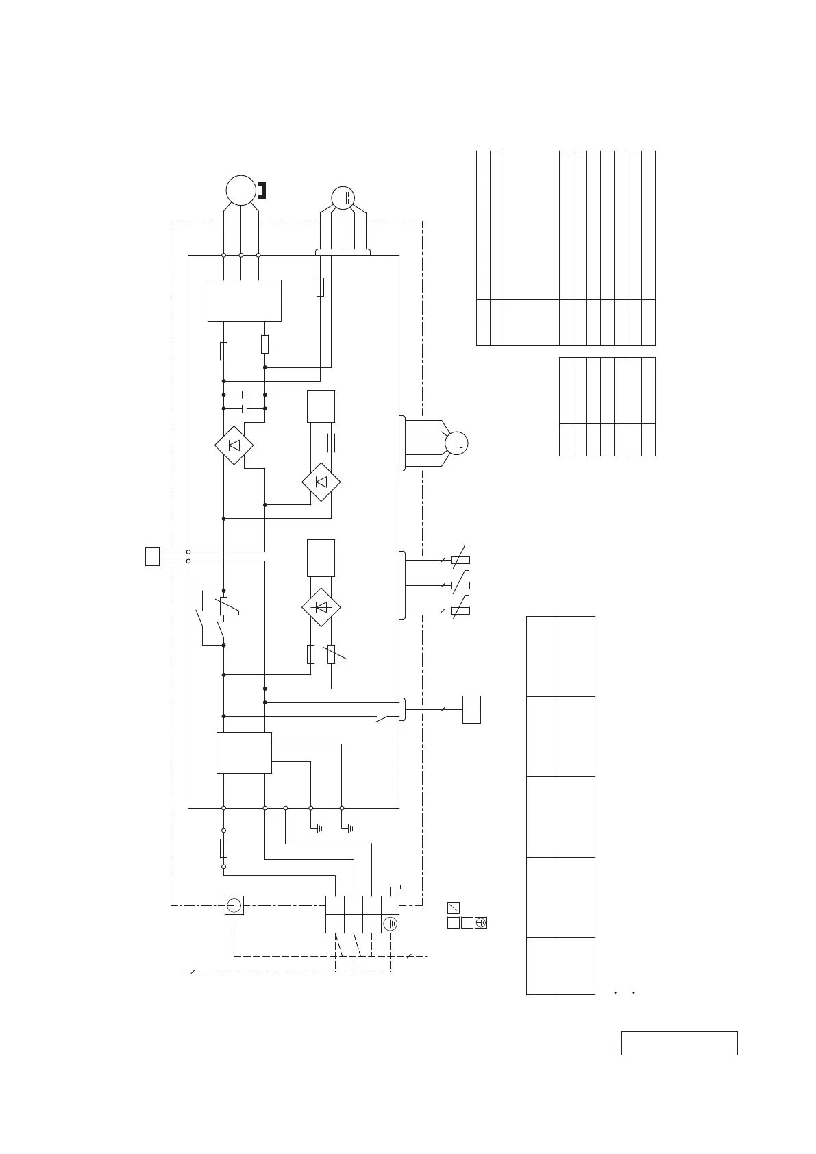
TH4 Discharge pipe temp. sensor
TH3 Outdoor air temp. sensor
TH2 Heat exchanger sensor
L Reactor
FMo Fan motor
EEV Electric expansion valvecoil
CM Compressor motor
CNTH
CNFAN
CNEEV
CN20S Connector
20S 4-way valvecoil
Item Description
BK Black
Mark Color
RD Red
WH White
OR Orange
YE Yellow
YG
YellowGreen
BK
WH
RD
V
W
U
PCB ASSY PCB1
M
MS
TRANSISTOR
POWER
POWER
T 1A L 250V
W
V
UP
N
CNTH CNEEV
CNFAN
3
+
S.IN
R.IN
G1
250V 15A
F7
C-2
RD
CN20S
WH
WH
F 3.15A L 250V
F1
BK
BK
WH
YG
YG
RD
G2
20S
SWITCHING
CIRCUIT
+
F3
FILTER
NOISE
L 1
N 2
3
YG
EEV
L
FMo
CM
TH4TH2 TH3
2 2
4
22
BK
3
TO INDOOR UNIT
POWER CABLE
SIGNAL WIRE
EARTH WIRE
M
1
3
250V 20A
F2
YE OR
T1 T2
CIRCUIT
PAM
250V 10A
F4
t
t
t
t
t
TB1
BLOCK
TERMINAL
STACK4
DIODE
STACK1
DIODE
STACK2
DIODE
Power source
1 Phase
220-240V 50Hz
220V 60Hz
Meaning of marks
Color marks
DescriptionItem
ConnectorCNE
CNF
CNG
CNM
CNS
CNU
CNX
CNY
Power source
1 Phase
220-240V 50Hz
220V 60Hz
[ ]
F 3.15A L 250V
PRINTED
CNF CNE
CNX
CNG
4
CNU
1 3 65
CNY
M M M
5 5
2 6
2
CNS
CNM
M
5
SN
J
L
G
1
CIRCUIT
BOARD
INTERFACE KIT
RED
BLACK
WHITE
YELLOW
BLUE
WIRELESS
DISPLAY
BACK-UP SW
BLACK
WHITE
RED
YELLOWGREEN
HEAT
EXCHANGER
2N
3
YELLOWGREEN
ONLY
2 2
HEAT
EXCHANGER
5
FUSE
VARISTOR
R-AMP
TERMINAL
BLOCK
MOTOR
FAN
LEFT
MOTOR
LOUVER
MOTOR
FLAP
RIGHT
MOTOR
LOUVER
HEAT EXCHANGER
SENSOR 1
HEAT EXCHANGER
SENSOR 2
ROOM TEMP.
SENSOR
HUMIDITY
SENSOR
4
SRK35,50ZS-W
STACK
DIODE
t
o
t
o
t
o
U
TO OUTDOOR UNIT
POWER CABLE
SIGNAL WIRE
EARTH WIRE
1
3
2
(2) Outdoor units
Models SRC20ZS-W, 25ZS-W, 35ZS-W
RWC000Z315

Related product manuals