EasyManua.ls Logo

Mitsubishi SRK 35ZS-W

Mitsubishi SRK 35ZS-W
81 pages
To Next Page IconTo Next Page
To Next Page IconTo Next Page
To Previous Page IconTo Previous Page
To Previous Page IconTo Previous Page
Loading...
-
21
-
'18 • SRK-T-250
PJZ000Z295
TEMP ON/OFF
48
ڧ120
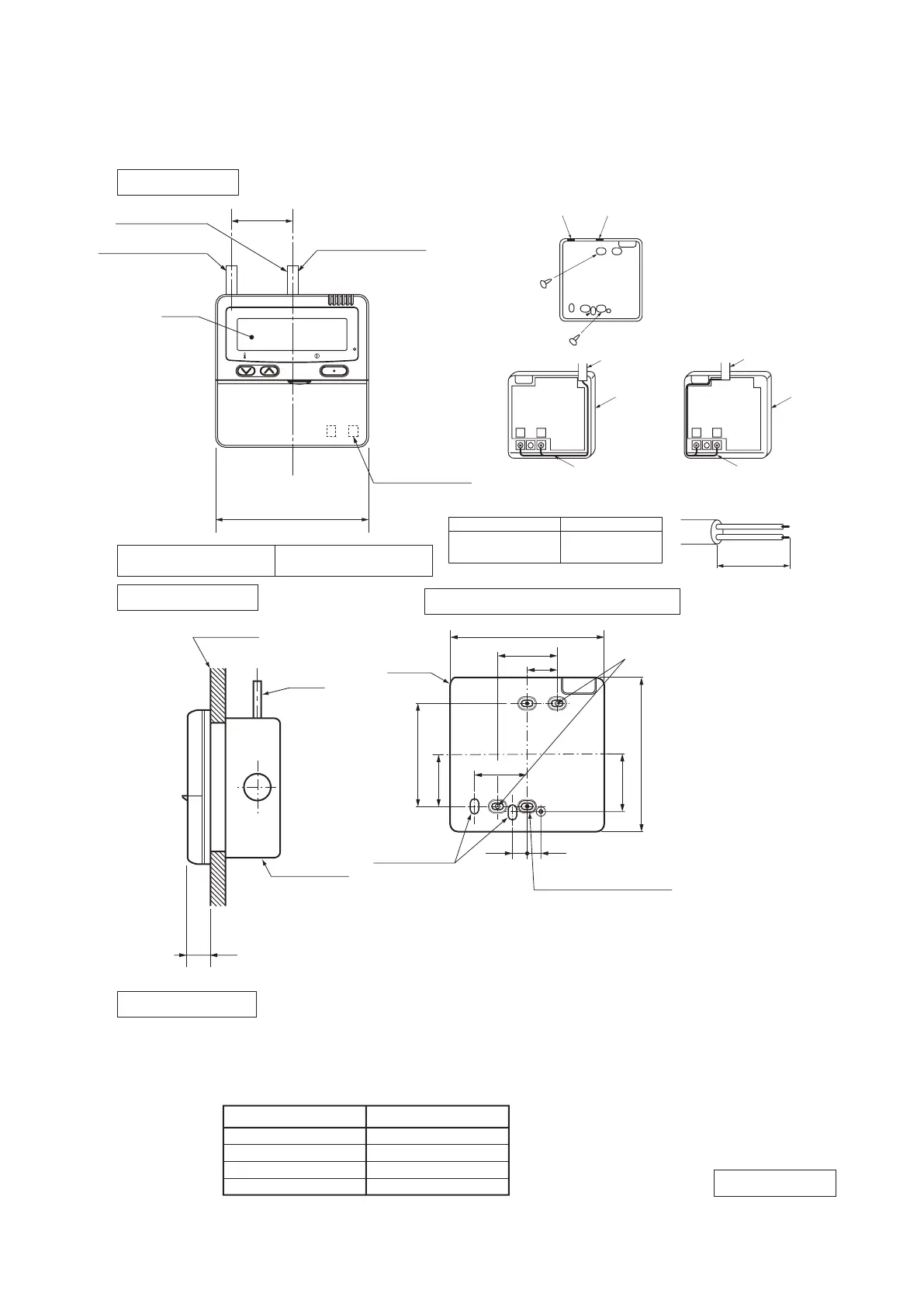
L C D
Wall surface
Wiring
Electrical box
Not included
19
Wiring specifications
Exposed mounting
23
46
11.5 11
Remote
control
outline
120
45
83.5
42
120
Remote control installation dimensions
Wiring oulet
Installation hole
12×7 Slot hole
9.5×5 Slot hole 4 places
1 Installation screw for remote control
M4 screw (2 pieces)
44
(1) If the prolongation is over 100m, change to the size below.
But, wiring in the remote control case should be under 0.5mm
2
. Change the wire size outside of
the case according to wire connecting. Waterproof treatment is necessary at the wire connecting
section. Be careful about contact failure.
Length Wiring thickness
100 to 200m
0.5mm
2
×2 cores
0.75mm
2
×2 cores
1.25mm
2
×2 cores
2.0mm
2
×2 cores
Under 300m
Under 400m
Under 600m
Upper part
Lower part
Lower case
Sheath
Upper cace
Board
Wiring
Upper
Lower
XY
Sheath
Upper cace
Board
Wiring
Upper
Lower
YX
Tighten the screws after
cutting off the thin part of
screw mounting part.
Embedded mounting
Pearl whiteExterior appearance
(Munsell color) (N8.5) near equivalent
The peeling-off length of sheath
The peeling-off length
of sheath
In case of pulling out from
upper left
In case of pulling out
from upper left
In case of pulling out
from upper left
X wiring : 170mm
Y wiring : 190mm
Pulling out from center
X wiring : 215mm
Y wiring : 195mm
Pulling out from upper left
In case of pulling out from center
In case of pulling out
from center
In case of pulling out
from center
Wiring outlet
Cut off the upper thin part of remote control lower case with a nipper or knife,
and grind burrs with a file etc.
0.3mm
2
×2 cores
X, Y Terminal block
Attach M3 screw
with washer
Unit:mm
Model RC-E5
Installation space
30mm
30mm
30mm
120mm
配線
30mm
30mm
30mm
120mm
Wiring
R/C temperature sensor
Secure minimum spaces for disassembling the case.
Upper left and Upper right sides
……30mm or more
Bottom side…120mm or more
If using L-shaped screwdriver, 50mm or more is
available.
Dimensions (Viewed from front)
37 23 23
固定穴
18.383.5
120
19
120
37 23 23
19
120
Fixing holes
83.5
120
18.3
200 m 0.5 mm
2
x 2 cores
300m 0.75 mm
2
x 2 cores
400m 1.25 mm
2
x 2 cores
600m 2.0 mm
2
x 2 cores
Do not install the remote control at following places.
(1) It could cause break-down or deformation of remote control.
Where it is exposed to direct sunlight
Where the ambient temperature becomes 0 °C or below, or 40 °C or above
Where the surface is not flat
Where the strength of installation area is insufficient
(2) Moisture may be attached to internal parts of the remote control, resulting in a display failure.
Place with high humidity where condensation occurs on the remote control
Where the remote control gets wet
(3) Accurate room temperature may not be detected using the temperature sensor of the remote
control.
Where the average room temperature cannot be detected
Place near the equipment to generate heat
Place affected by outside air in opening/closing the door
Place exposed to direct sunlight or wind from air-conditioner
Where the difference between wall and room temperature is large
(4) When you are using the automatic grille up and down panel in the IU, you may not be able to
confirm the up and down motion.
Where the IU cannot be visually confirmed
When installing the unit at a hospital, telecommunication facility, etc., take
measures to suppress electric noises.
It could cause malfunction or break-down due to hazardous effects on the inverter, private power
generator, high frequency medical equipment, radio communication equipment, etc.
The influences transmitted from the remote control to medical or communication equipment could
disrupt medical activities, video broadcasting or cause noise interference.
R/C cable:0.3mm
2
x2 cores
When the cable length is longer than 100 m,
the max size for wires used in the R/C case
is 0.5 mm
2
. Connect them to wires of larger
size near the outside of R/C. When wires are
connected, take measures to prevent water,
etc. from entering inside.
Adapted RoHS directive

Related product manuals