EasyManua.ls Logo

Mitsubishi SRK 35ZS-W

Mitsubishi SRK 35ZS-W
81 pages
To Next Page IconTo Next Page
To Next Page IconTo Next Page
To Previous Page IconTo Previous Page
To Previous Page IconTo Previous Page
Loading...
-
44
-
'18 • SRK-T-250
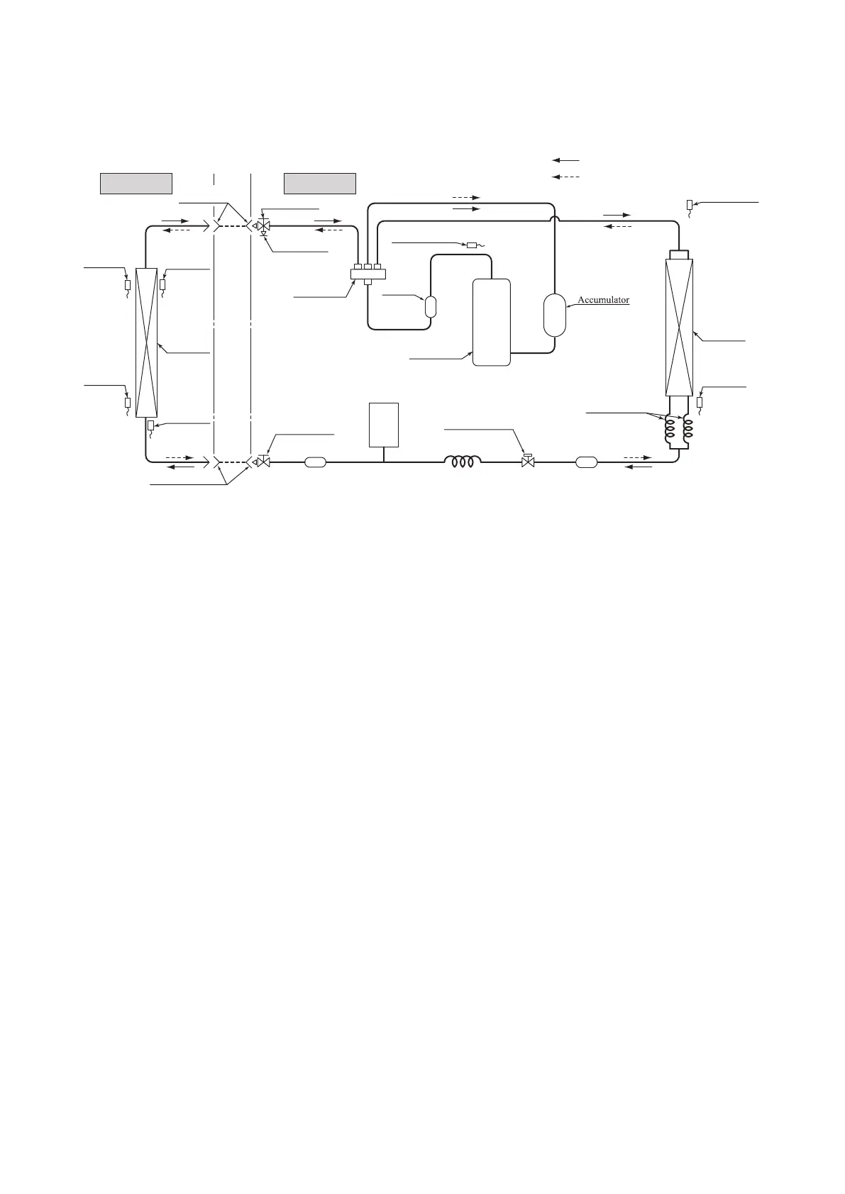
Models SRK20ZJX-S, 25ZJX-S, 35ZJX-S
Indoor unit
Outdoor unit
Flare
connection
Flare connection
Liquid
pipe
(φ6.35)
Gas pipie
(φ9.52)
Service valve
Heat
exchanger
Heat
exchanger
sensor
Electronic
expansion valve
(Liquid)
Strainer Strainer
Capillary tube
Outdoor air
temp. sensor
Muffler
Muffler
Compressor
Accumulator
Discharge pipe
temp. sensor
Cooling cycle
Heating cycle
Check joint
4way valve
Service valve
Heat
exchanger
sensor
(Th2
2)
(TH3)
Room temp.
sensor
(Th1)
(Th2
1)
(
Gas
)
(TH2)
Heat
exchanger
sensor
(TH1)
(EEV)
Capillary tube
Heat
exchanger
Model SRK50ZM-S
Indoor unit
Outdoor unit
Flare
connection
Flare connection
Liquid
pipe
(φ6.35)
Gas
pipe
(φ12.7)
Service valve
Heat
exchanger
Heat
exchanger
sensor
Electronic
expansion valve
(Liquid)
Strainer
Receiver
Muffler
Capillary tube
Outdoor air
temp. sensor
Muffler
Compressor
Discharge pipe
temp. sensor
Cooling cycle
Heating cycle
Check joint
4-way valve
Service valve
Heat
exchanger
sensor
(Th3)
(TH3)
Room temp.
sensor
(Th1)
(Th2)
(
Gas
)
(TH2)
Heat
exchanger
sensor
(TH1)
(EEV)
Capillary tube
Heat
exchanger
Humidity
sensor
(HD)
Humidity
sensor
(Th3)
*1
*1. SRF series only.
Models SRK50ZS-W
SRK50ZS-WB
SRK50ZS-WT

Related product manuals