EasyManua.ls Logo

Mitsubishi SRK19CES - Electrical Data; Electrical Wiring

Mitsubishi SRK19CES
260 pages
Print Icon
To Next Page IconTo Next Page
To Next Page IconTo Next Page
To Previous Page IconTo Previous Page
To Previous Page IconTo Previous Page
Loading...
-
8
-
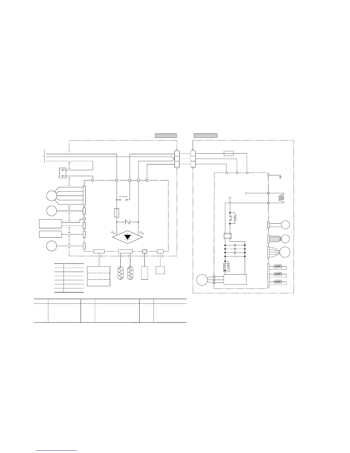
1.1.3 ELECTRICAL DATA
(1) Electrical wiring
Model SRK13ZEV-S
Outdoor unit
Indoor unit
Printed circuit
board
TB TB
F (250V 20A)
BK
WH
RD
U
V
W
BK
C2 S.IN R.IN
Re
G
WH
RD
Th4
Th5
Th6
CNB
CNE
CNA
CND
1
2
3
NP
Power
transistor
20S
EEV
FMo
DS
CM
Black
Brown
Red
Blue
White
Yellow/Green
BK
BR
RD
BL
WH
Y/GN
Yellow
Y
Color symbol
Meaning of marks
Symbol
Parts name
CM
Compressor motor
F
Fuse
FM
I
F
Fan motor (Indoor)
FMo
F
an motor (Outdoor)
SM
RE
Flap motor
Reactor
Symbol
Parts name
Th
1
Room temp. sensor
Th
2
Heat exchanger sensor (Indoor unit)
Th
3
Humidity sensor
Th
4
Heat exchanger sensor (Outdoor unit)
Th
5
Outdoor air temp. sensor
Th
6
Discharge temp. sensor
Symbol
Parts name
20S
4 way valve (coil)
ZNR
Varistor
52C
Magnetic contactor
DS
Diode stack
EEV
Electronic expansion valve
SV
Solenoid valve
ZNR
250V
3A
F
CNM
Printed
circuit
board
JEM-ACNFCNE
1
2
3
52C3
CNG
SJ
52C
52C4
4
CNU
1
RD
RD
3
WH
WH
BK
BK
BK
6
5
BL
BL
BR
BL
Y
CNL
CNV
CNN
T4
ION
generator
Safety switch
Display
Wireless R-Amp
Back-up switch
Y/G
G
SV
SM
Th1 Th2 Th3
HA
FM
I
Heat
exchanger
Power source
1 Phase
220V 50Hz
( )

Table of Contents

Related product manuals