EasyManua.ls Logo

Moffat Turbofan E32D5 - Specifications

Moffat Turbofan E32D5
21 pages
Print Icon
To Next Page IconTo Next Page
To Next Page IconTo Next Page
To Previous Page IconTo Previous Page
To Previous Page IconTo Previous Page
Loading...
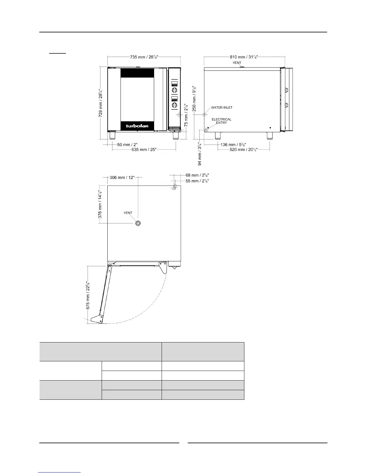
Specifications
3
E32D5
Oven Power Ratings
208V, 50/60Hz, 5.8 kW
220 - 240V, 50/60Hz, 6.5 kW
Oven Tray Details
Tray Capacity
5 x US Full Pan
Tray Spacing
85 mm / 3
1
/
3
Water Connection
Max Water Pressure
80 psi / 550 kPa.
Connection Size
3
/
4
” BSP

Related product manuals