EasyManua.ls Logo

Monitor M2400 - Page 25

Monitor M2400
27 pages
Print Icon
To Next Page IconTo Next Page
To Next Page IconTo Next Page
To Previous Page IconTo Previous Page
To Previous Page IconTo Previous Page
Loading...
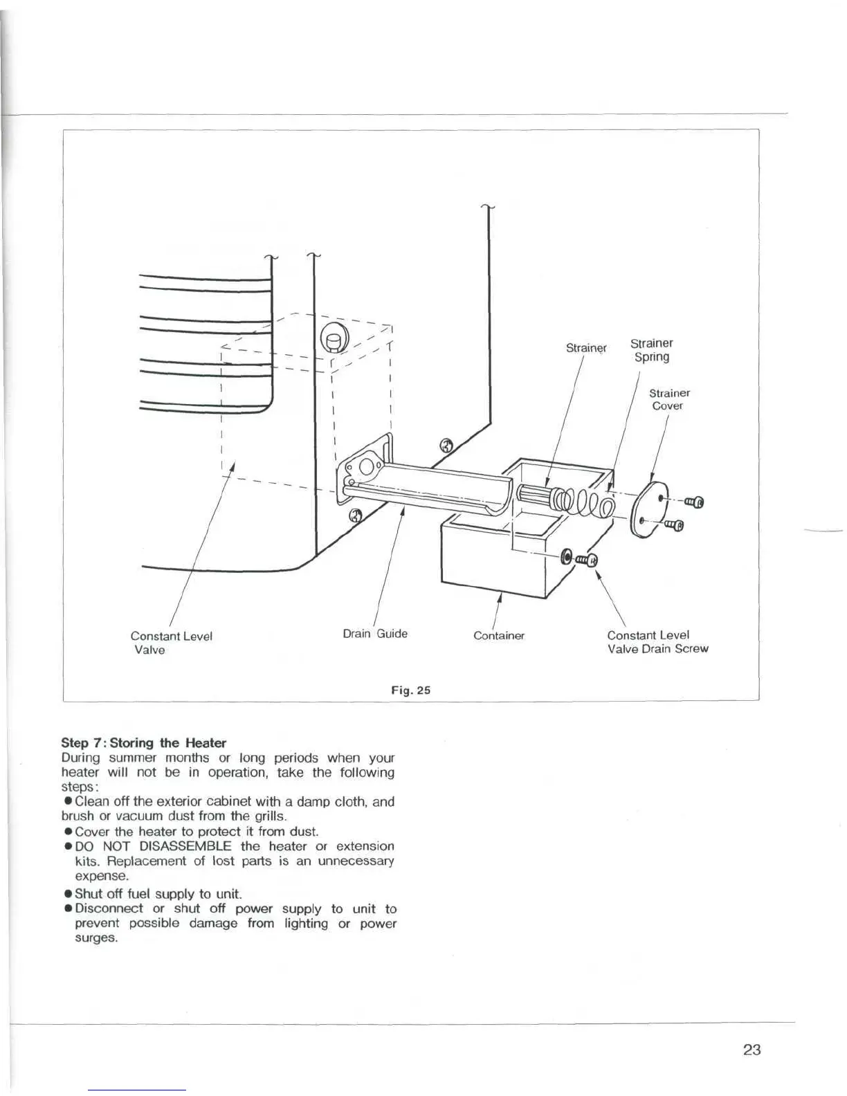
Strainer
Strainer
Spring
Strainer
Cover
Constant
Level
Valve
Drain
Guide
Container
Constant
Level
Valve
Drain
Screw
Fig.
25
Step
7:
Storing
the
Heater
During
summer
months
or
long periods when your
heater
will
not be in
operation, take
the
following
steps:
Clean
off the
exterior
cabinet with
a
damp cloth,
and
brush
or
vacuum dust
from
the
grills.
Cover
the
heater
to
protect
it
from
dust.
DO
NOT
DISASSEMBLE
the
heater
or
extension
kits.
Replacement
of
lost parts
is an
unnecessary
expense.
Shut
off
fuel supply
to
unit.
Disconnect
or
shut
off
power supply
to
unit
to
prevent
possible damage from lighting
or
power
surges.
23

Related product manuals