EasyManua.ls Logo

Mono Eco Connect FG159

Mono Eco Connect FG159
112 pages
To Next Page IconTo Next Page
To Next Page IconTo Next Page
To Previous Page IconTo Previous Page
To Previous Page IconTo Previous Page
Loading...
Installation and Operation Manual Eco Connect Convection Ovens | 4/5/7/10-Tray | Steam
FG1BX-UK-MAN-0200 | Rev. A23 (March 2023) MONO 97
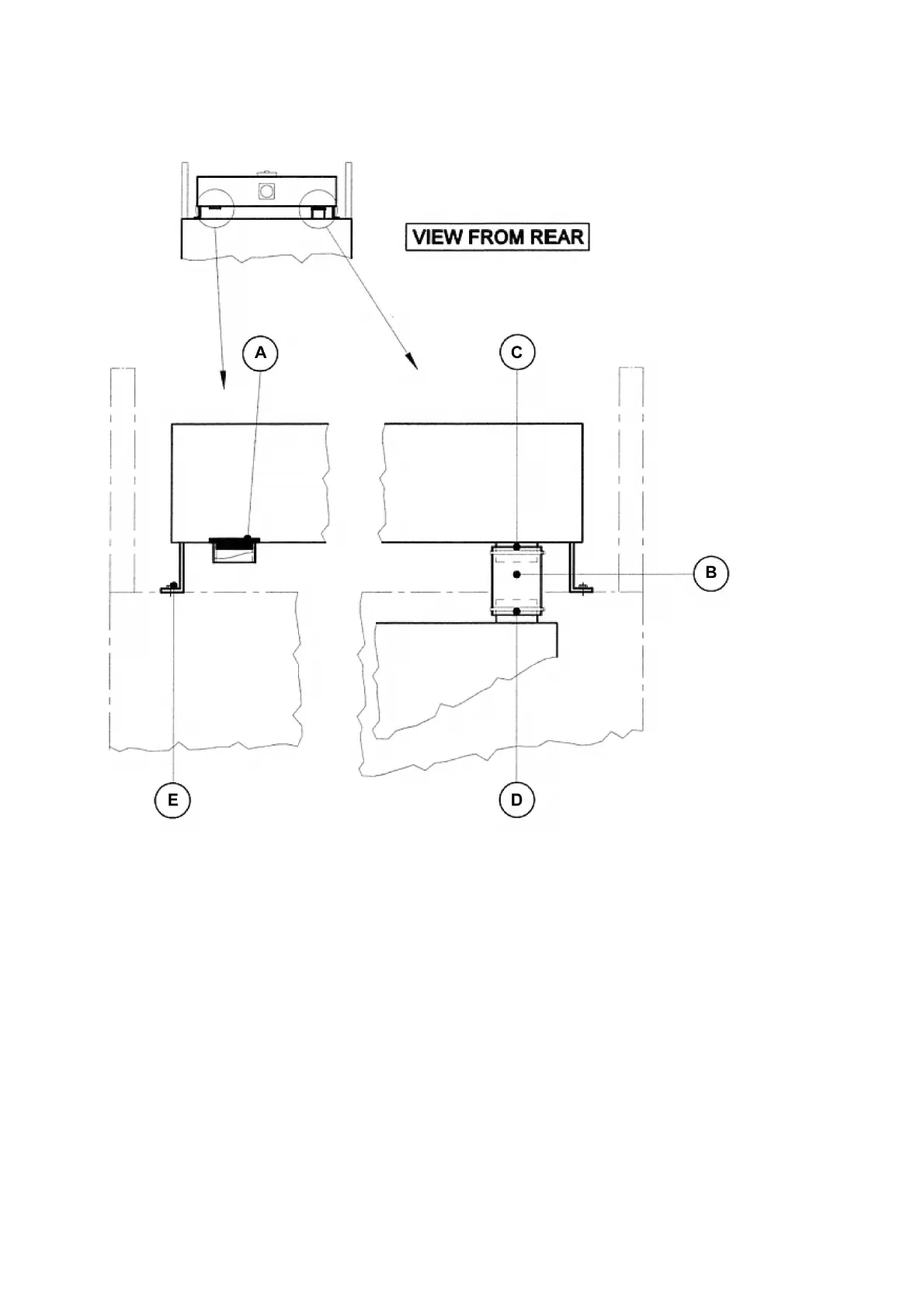
Figure 41: Installation of a condenser unit

Related product manuals