EasyManua.ls Logo

Monogram ZIS420D - Page 9

Monogram ZIS420D
24 pages
Print Icon
To Next Page IconTo Next Page
To Next Page IconTo Next Page
To Previous Page IconTo Previous Page
To Previous Page IconTo Previous Page
Loading...
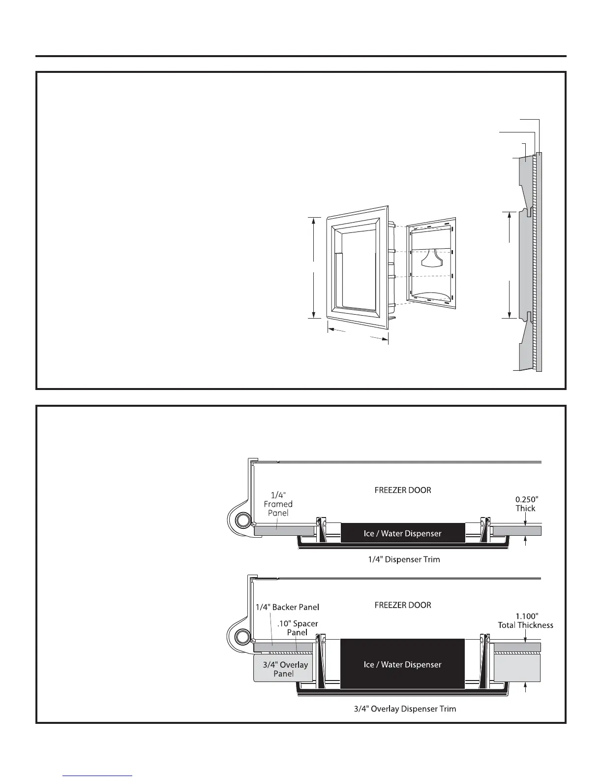
DISPENSER MODELS:
RAISED OVERLAY PANEL DESIGN
When a raised panel design is to be used,
a custom wide middle rail is required to accept
the dispenser trim.
7KHPLGGOHUDLOPXVWEHZLGHHQRXJKWRDOORZ
for the dispenser trim to overlap the opening.
7KHPLGGOHUDLOPXVWEHµWRWDOWKLFNQHVV
to accept the dispenser trim.
9
DISPENSER TRIM FIT EXAMPLES:
(NOT TO SCALE)
1/4” FRAMED PANEL
7KHGLVSHQVHUWULPILWVRYHUWKHFXVWRP
SDQHODQGVQDSVLQWRWKHIUHH]HUGRRU
7KHFOLSVZLOOQRWHQJDJHWKHGRRU
LIWKHSDQHOLVPRUHWKDQµWKLFN
,IWKHSDQHOLVOHVVWKDQµWKLFN
a noticeable gap may be created
around the dispenser trim.
3/4” OVERLAY PANEL
7KHGLVSHQVHUWULPILWVRYHUWKHFXVWRP
SDQHODQGVQDSVLQWRWKHIUHH]HUGRRU
7KHFOLSVZLOOQRWHQJDJHWKHGRRU
LIWKHSDQHOLVPRUHWKDQµWKLFN
,IWKHSDQHOLVOHVVWKDQµWKLFN
a noticeable gap may be created
around the dispenser trim.
1
/
4" Backer Panel
.10" Spacer
3/4" Overlay Panel
Wide
Middle
Rail is
Required
Dispenser
Trim
16-3/4"
10-5/8"
Design Guide

Related product manuals