EasyManua.ls Logo

MOODY Eclipse 33 - Page 73

Default Icon
118 pages
Print Icon
To Next Page IconTo Next Page
To Next Page IconTo Next Page
To Previous Page IconTo Previous Page
To Previous Page IconTo Previous Page
Loading...
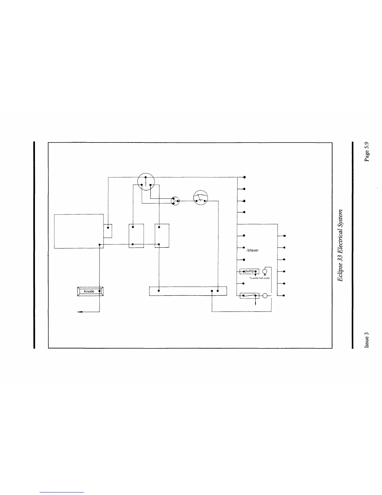
Battery isolation switch
ENGINE
Starter
BAT 1
Battery status meter
Select switch
BAT 2
BUSS BAR
Skin fittings
(prop, seacocks etc)
-
Steaming light
-
Deck light
-
Navigation lights
-
Spare
Cabin lights
Bunk lights
/shaver
Engine room
~*
light
Freshwater
-|-«pump«
Fridge
•o-
1
Navigation instruments
' Wipers
Accessories
Compass light
Spare
Spare

Table of Contents

Related product manuals