EasyManua.ls Logo

Moog RKP-II - Remote Pressure Compensator with Mooring Control, H2; Fig. 7: Pressure Compensator with Mooring Control, H2

Moog RKP-II
72 pages
To Next Page IconTo Next Page
To Next Page IconTo Next Page
To Previous Page IconTo Previous Page
To Previous Page IconTo Previous Page
Loading...
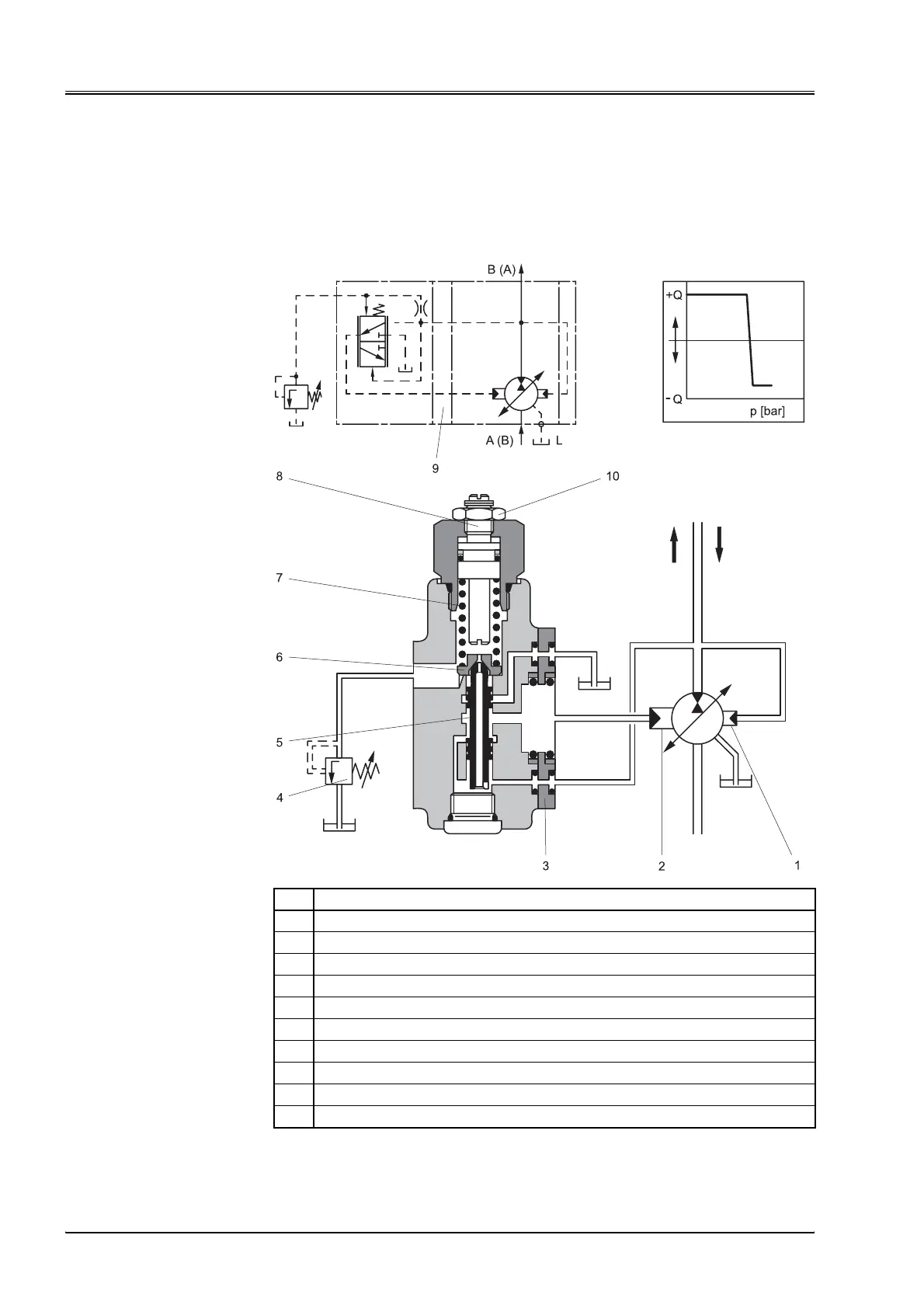
Compensator Operation 3 Product Description
18 User Manual RKP-II (CA53461-001; Version 2, January 2010) © 2010 Moog GmbH
3.5.3 Remote Pressure Compensator with
Mooring Control, H2
Remote Pressure
Compensator with
Mooring Control, H2
The pressure compensator with Mooring control has an intermediate plate
inserted between the pump body and the pressure compensator. The
intermediate plate enables the pump's absorption operation.
Fig. 7: Pressure Compensator with Mooring Control, H2
Pos. Description
1 Control piston 2
2 Control piston 1
3 Intermediate plate
4 Pilot pressure valve:
5 Valve spool
6Orifice
7p
min.
spring
8 Locked adjustment screw
9 Intermediate plate
10 Locknut for the adjustment screw

Table of Contents

Related product manuals