EasyManua.ls Logo

Motorisation+ SLIDER SLD400LED - 4.7 - Electrical connections

Default Icon
Print Icon
To Next Page IconTo Next Page
To Next Page IconTo Next Page
To Previous Page IconTo Previous Page
To Previous Page IconTo Previous Page
Loading...
EN
24
COM
PAR
OPEN
CLOSE
SBS
NEG
PH-POW
PH1
PH2
COM
FLASH
LED
SEN
COM
STOP
EDGE
EDGE
COM
ELEC
COM
IND
POWER
SUPPLY
N
T2A
L
230Vac
50/60Hz
PHOTOTEST
LIGHT
TWILIGHT SENSOR
LED OUTPUT
STOP
OPEN
PHOTOCELL 1
PHOTOCELL 2
CLOSE
PARCIAL
STEP BY STEP
+ COMMON
+ COMMON
SAFETY EDGE
ELECTRIC LOCK
NEGATIVE
SBS
M1
M2
BATTERIES
(ACCESSORY)
COMMON
FLASH
SHIELD
ANT
PH1
RX
2
1
PH1
TX
SHIELD
ANT
COMMON
FLASH
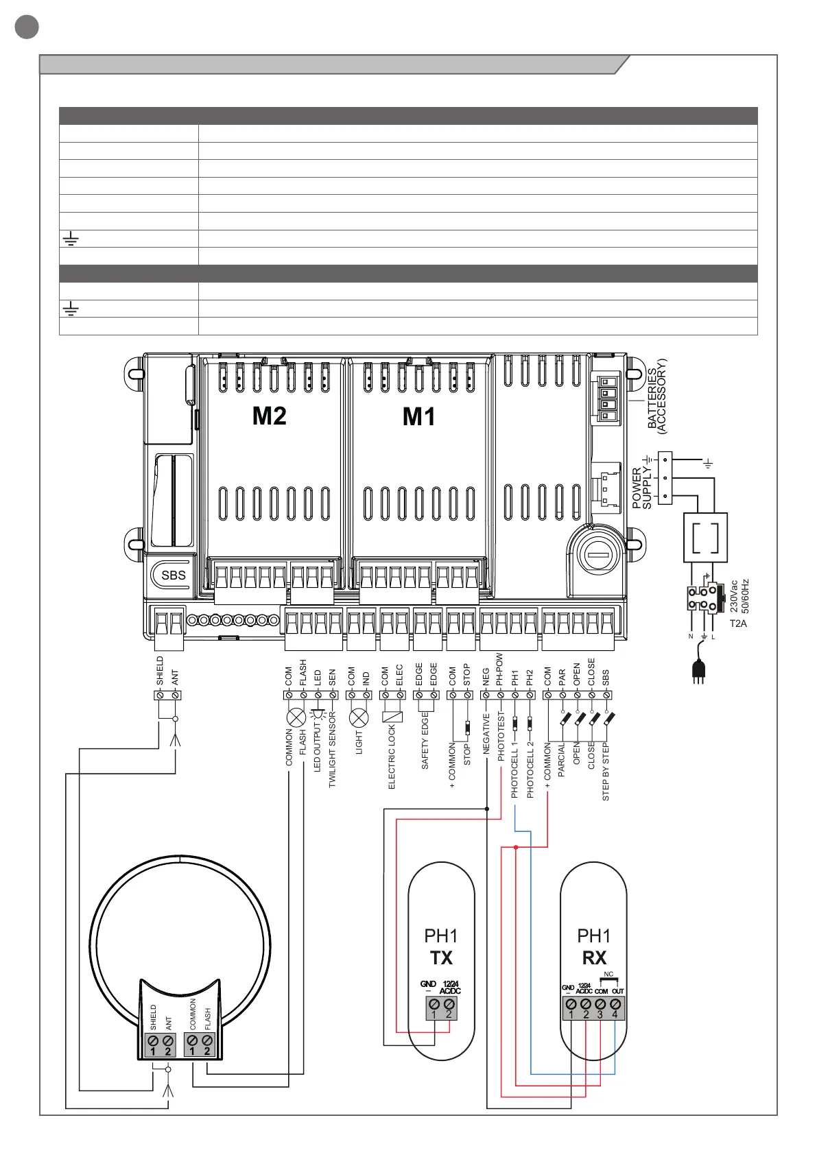
4.7 - Electrical connections
TRANSFORMER
WARNING - Before making the connections, ensure that the control unit is not powered up.
POWER MODULE CONNECTIONS
LS1 Limit switch 1 input (only for SLIDER)
LS2 Limit switch 2 input (only for SLIDER)
V+ Limit switch/encoder power supply positive common (12 Vdc 50 mA MAX)
ENC Encoder S signal input
NEG Encoder power supply negative
M- Motor output
Earth
M+ Motor output
POWER SUPPLY CONNECTIONS
L Power supply 230 Vac 50-60 Hz
Earth
N Power supply neutral 230 Vac 50-60 Hz