EasyManua.ls Logo

Motorisation+ SLIDER SLD400LED - Branchements Électriques

Default Icon
Print Icon
To Next Page IconTo Next Page
To Next Page IconTo Next Page
To Previous Page IconTo Previous Page
To Previous Page IconTo Previous Page
Loading...
FR
14
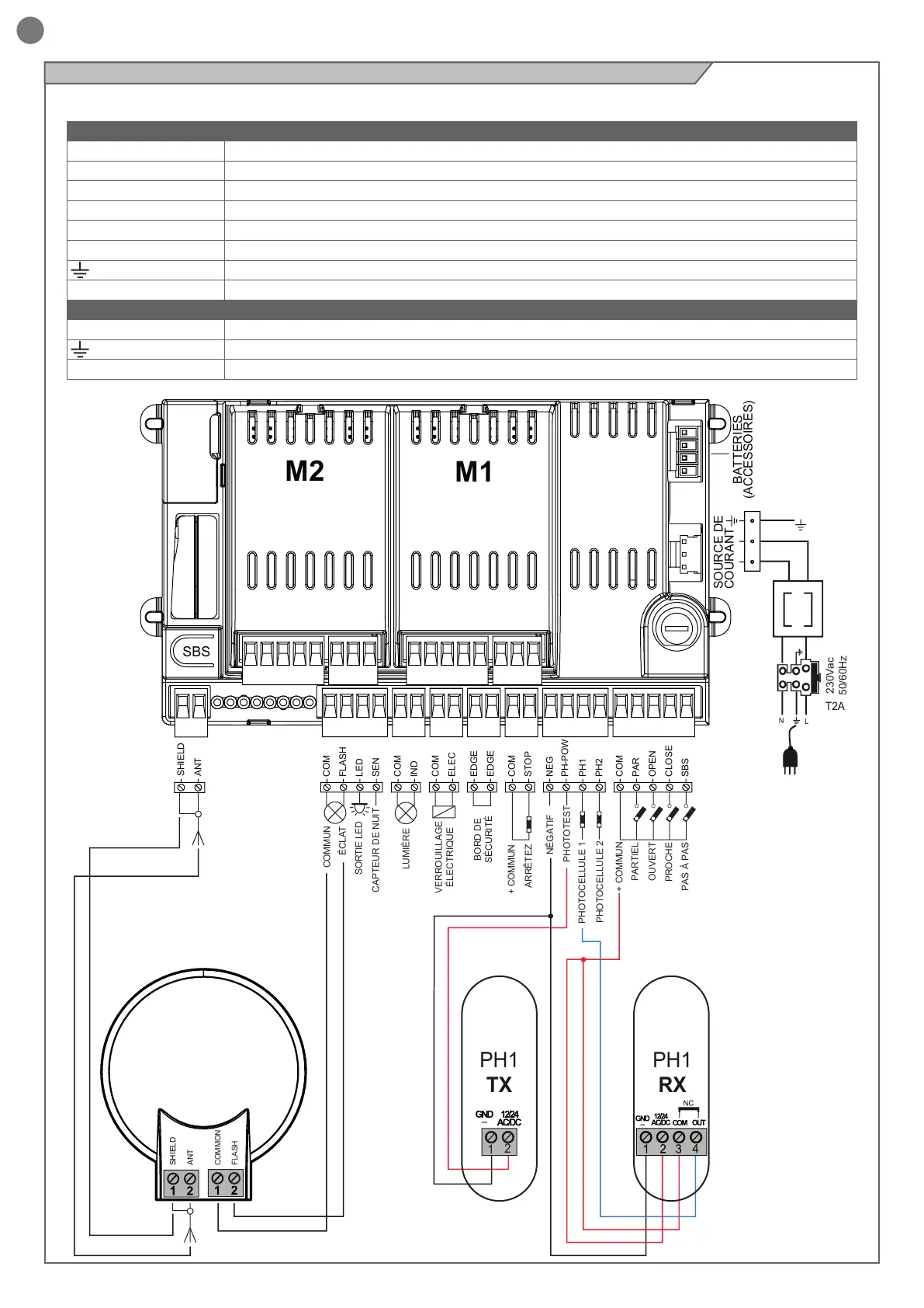
4.7 - Branchements électriques
ATTENTION - Avant d’e󰀨ectuer les branchements, vérier que la logique de commande n’est pas sous tension.
COM
PAR
OPEN
CLOSE
SBS
NEG
PH-POW
PH1
PH2
COM
FLASH
LED
SEN
SHIELD
ANT
COM
STOP
EDGE
EDGE
COM
ELEC
COM
IND
SOURCE DE
COURANT
N
T2A
L
230Vac
50/60Hz
PHOTOTEST
LUMIÈRE
CAPTEUR DE NUIT
SORTIE LED
ARRÊTEZ
OUVERT
PHOTOCELLULE 1
PHOTOCELLULE 2
PROCHE
PARTIEL
PAS À PAS
+ COMMUN
+ COMMUN
BORD DE
SÉCURITÉ
VERROUILLAGE
ÉLECTRIQUE
NÉGATIF
SBS
M1
M2
BATTERIES
(ACCESSOIRES)
COMMUN
ÉCLAT
COMMON
FLASH
SHIELD
ANT
PH1
RX
2
1
PH1
TX
TRANSFORMATEUR
BRANCHEMENTS DE MODULE DE PUISSANCE
LS1 Entrée n de course 1(seulement pour SLIDER)
LS2 Entrée n de course 2 (seulement pour SLIDER)
V+ Commun + n de course/positif alimentation encodeur (12 Vcc 50 mA MAX)
ENC Entrée signal encodeur S
NEG Négatif alimentation encodeur
M- Sortie moteur
Terre
M+ Sortie moteur
BRANCHEMENTS ALIMENTATION
L Phase alimentation 230 Vca 50-60 Hz
Terre
N Neutre alimentation 230 Vca 50-60 Hz