EasyManua.ls Logo

MSI H510M PRO - コンポーネントの概要

MSI H510M PRO
187 pages
To Next Page IconTo Next Page
To Next Page IconTo Next Page
To Previous Page IconTo Previous Page
To Previous Page IconTo Previous Page
Loading...
8
󴚮󸋖
󴚮󸋖
󱛉󲣿󴉵󸵾󵺏󶮤󸨧󹨨
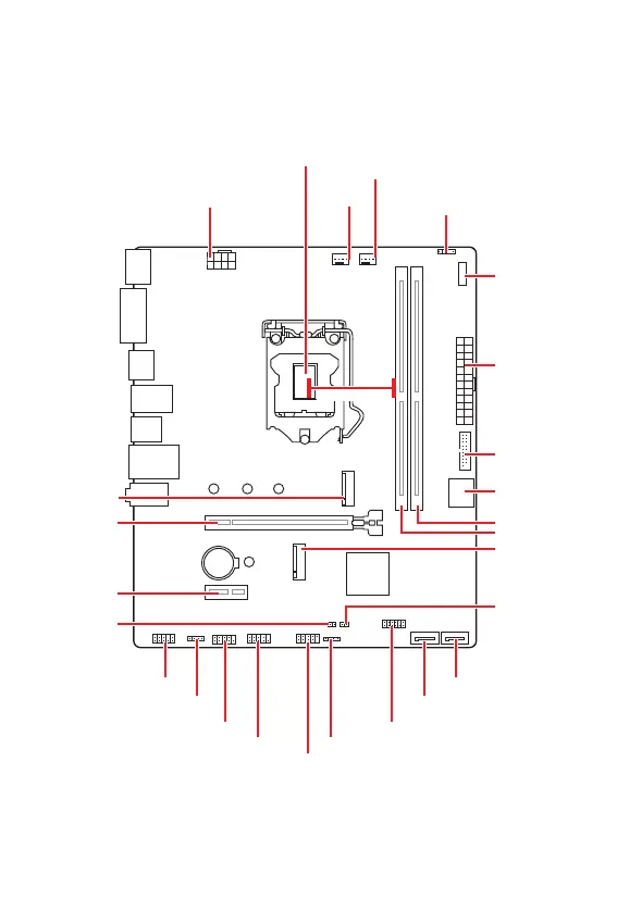
BAT1
SYS_FAN1
CPU_FAN1

M2_1


PCI_E2
PCI_E1
DIMMA1
DIMMB1
JTPM1

SATA2
SATA1
JAUD1


JBAT1
ATX_PWR1
EZ Debug LED
CPU_PWR1
JUSB2
JUSB1
JFP2
JFP1
JCI1
JCOM1
53.44mm*

Table of Contents

Other manuals for MSI H510M PRO

Related product manuals