EasyManua.ls Logo

NARVI NOVA ELECTRON Series - Page 41

NARVI NOVA ELECTRON Series
Print Icon
To Next Page IconTo Next Page
To Next Page IconTo Next Page
To Previous Page IconTo Previous Page
To Previous Page IconTo Previous Page
Loading...
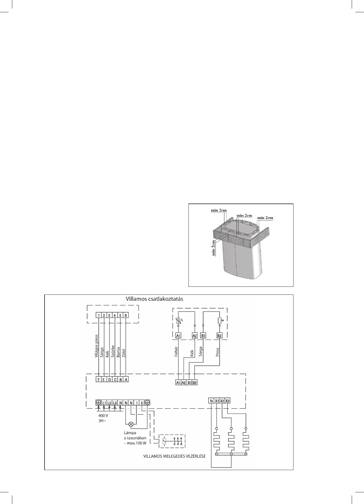
7. A SZAUNA SZELLŐZTETÉSE:
- Az elegendő oxigénellátás és friss levegő érdekében a szaunában maximálisan
hatásosan kell működnie a szellőzőrendszernek. A friss levegőnek ajánlatos
beáramlania a köves kemence közelében, de nem közelebb 50 cm-nél.
- A csövet, amelyen beáramlik a levegő, szabályozható szeleppel kell ellátni.
- A kivezető szelep mérete legalább kétszerese legyen a bevezetőnél. A kivezető
szelepet fel lehet helyezni a köves kemencével szembeni falra, legalább 20 cm-nél
magasabban a bevezető szelepnél.
8. A SZAUNA SZERKEZETE:
- A szaunát magas fokú hőszigeteléssel kell ellátni, különösen a mennyezetet,
amelyen keresztül a legtöbb gőz távozik. A szauna hőszigetelését ajánlatos vízálló
anyaggal védeni, például alumínium papírral. A felületek burkolatát kizárólag fából
ajánlatos készíteni.
9. VÉDŐKERÍTÉS:
- Szükség esetén elkerítheti a köves kemencét
védőkerítéssel. Lásd a 10. ábrát. A védőkerítést
fából ajánlatos készíteni. Ebben az esetben
feltétlenül szükséges betartani a megengedett
minimális biztonságos távolságot a gyúlékony
szerkezetekig.
A helytelen felállítás tűzesethez vezethet!
10. ábra

Related product manuals