EasyManua.ls Logo

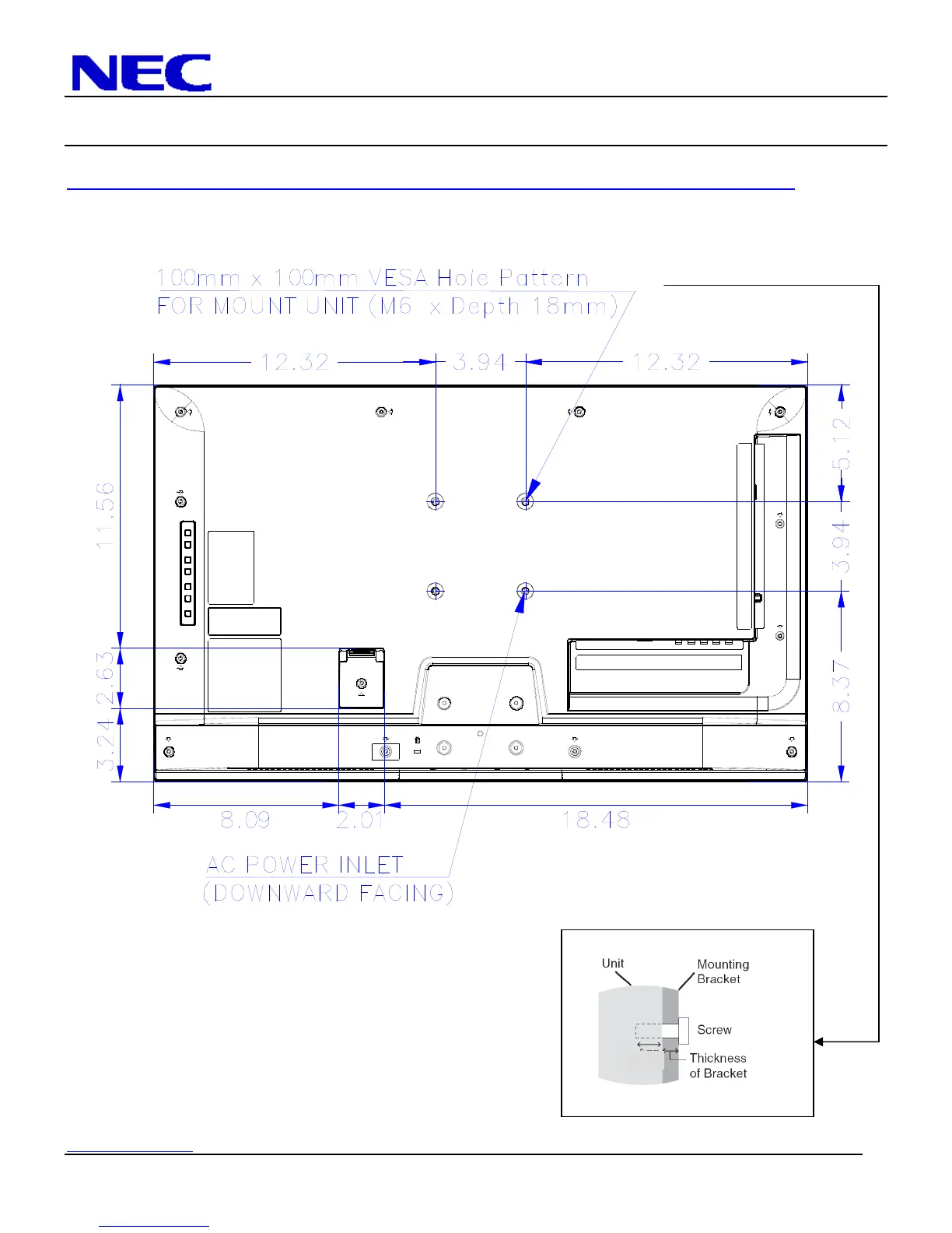
NEC E324 - Display Dimensions; Rear

NEC E324
8 pages
Print Icon
To Next Page IconTo Next Page
To Next Page IconTo Next Page
To Previous Page IconTo Previous Page
To Previous Page IconTo Previous Page
Loading...
NEC Display Solutions of America, Inc.
E324 Installation Guide
32” LCD Display Rev 1.0
www.necdisplay.com E324 Page 5 of 8
Display dimensions
18mm

Other manuals for NEC E324

Related product manuals