EasyManua.ls Logo

NEC E805 - Rear Mounting Dimensions

NEC E805
11 pages
Print Icon
To Next Page IconTo Next Page
To Next Page IconTo Next Page
To Previous Page IconTo Previous Page
To Previous Page IconTo Previous Page
Loading...
NEC Display Solutions of America, Inc.
E805 Installation Guide
80” LCD Display Rev 1.0
www.necdisplay.com E805 Page 4 of 11
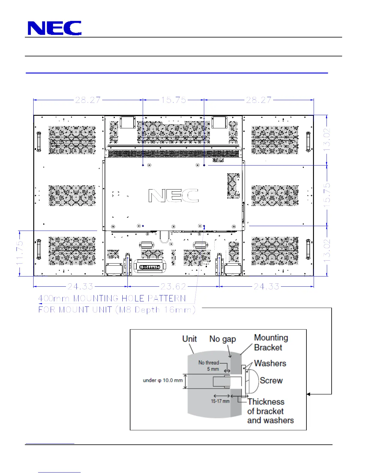
Display dimensions (cont.):

Related product manuals