EasyManua.ls Logo

NetZero Kalfire E-one AA-11-05388 - E-one 100F - 9.4 Dimension Drawing

Default Icon
20 pages
Print Icon
To Next Page IconTo Next Page
To Next Page IconTo Next Page
To Previous Page IconTo Previous Page
To Previous Page IconTo Previous Page
Loading...
19
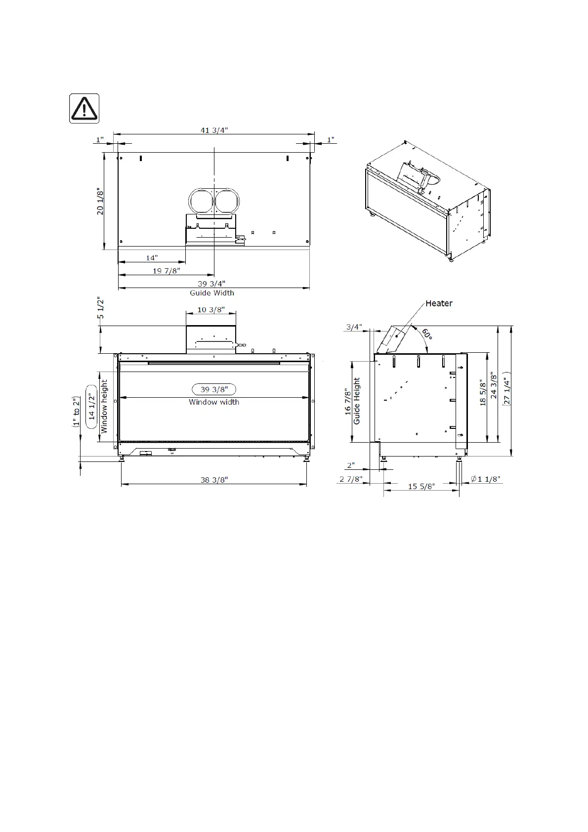
9.4 Dimension Drawing
For framing the fireplace follow the framing dimensions and instructions given in this manual.
Warning: The ceiling of the enclosure must be at least 6” above the top of the heater or 11 ½” above the top of
the fireplace. Do not frame in front of the heater. Doing so will not allow the heater to be removed for service.

Related product manuals