EasyManua.ls Logo

Newmac NC100 - Clearances and Protection

Default Icon
27 pages
Print Icon
To Next Page IconTo Next Page
To Next Page IconTo Next Page
To Previous Page IconTo Previous Page
To Previous Page IconTo Previous Page
Loading...
2
5. If the chimney connector must pass through a wall or partition of combustible construction, the installation must
conform to the requirements of NFPA211 (USA) or CAN/CSA B365 (Canada). Note that the chimney connector
must NOT pass through a ceiling or a roof space.
6. Place heater on a listed non combustible and non-heat conducting stove-board or durable pad, equivalent to
asbestos mill-board of at least 3/8” (10mm) thickness, according to the requirements of NFPA 211 (USA),
CAN/CSA B365 (Canada) and the requirements of the regulatory authority.
7. Using 6” (150mm) diameter mild steel (not galvanized) connector pipe and fittings suitable for solid fuel, connect the
breech outlet of the room heater to the chimney. Secure each chimney connector joint with three sheet metal
screws and connections to the appliance with a minimum of 2 sheet metal screws. For better performance, seal
each connector pipe joint with a small amount of furnace cement. When laying out the connector pipe plan for a
method of dismounting the assembly for inspection and cleaning of the connector pipes and the chimney flue.
8. Ensure that the room heater and the connector pipe locations conform to the required clearance to combustibles.
9. Ensure that a direct source of fresh outside air for combustion is available to the room heater. This is important as
replacement air for the gases which the heater will be exhausting up the chimney.
BEFORE FIRING HEATER
Please note that some parts are shipped inside the appliance. Remove and assemble as required. If necessary, slide
the firebricks back to the rear so that no gaps remain between them.
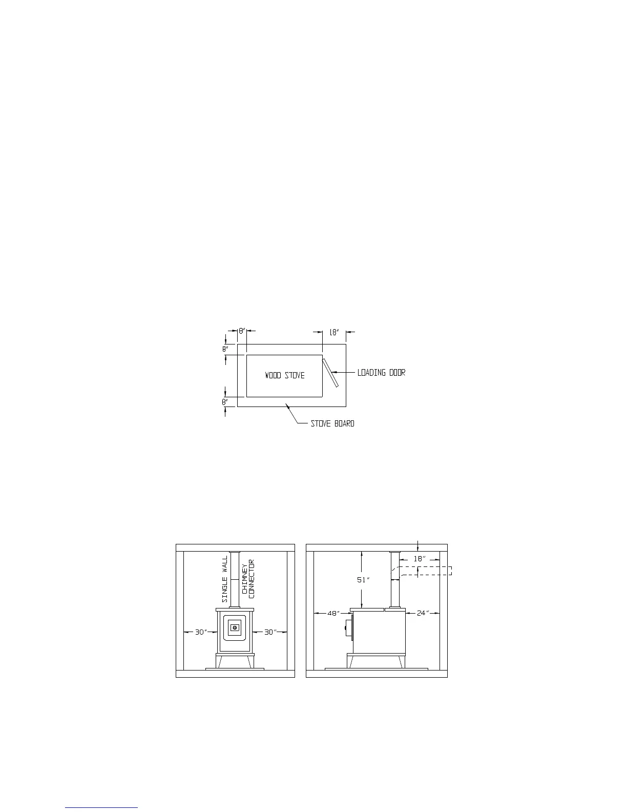
CLEARANCES TO COMBUSTIBLES FLOOR PROTECTION
Refer to the certification label on the appliance and the following diagrams for the appropriate model being installed.
WARNING: Install on durable non-combustible and non-heat conducting pad, equivalent to asbestos mill-board of at
least 3/8” (10 mm) minimum thickness, which extends at least 8” (205 mm) from the unit on all sides, and 18” (455 mm)
from the firedoor end. Alternatively install in accordance with provisions of NFPA 211 (USA) or CAN/CSA-B365
(Canada). Do not obstruct the space beneath the stove.
WARNING: Maintain minimum specified clearances to combustible materials. Do not place fuel (wood) within specified
clearances or within space required for charging and/or ash removal.
CLEARANCE TO COMBUSTIBLES WALLS AND CEILING
NS220 (Newmac Status)

Table of Contents

Related product manuals