EasyManua.ls Logo

Nexo LS500 - PS10;LS500 Connection Diagrams; System Wiring Diagrams

Default Icon
42 pages
Print Icon
To Next Page IconTo Next Page
To Next Page IconTo Next Page
To Previous Page IconTo Previous Page
To Previous Page IconTo Previous Page
Loading...
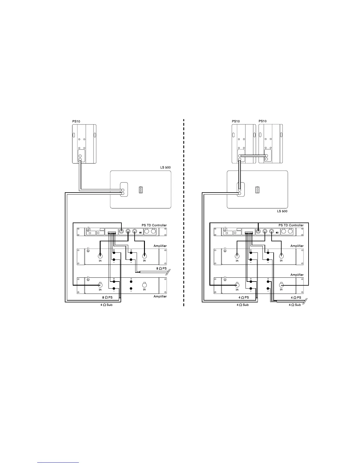
PS10, PS10TD & LS500 : SPECIFICATIONS, CURVES & DIAGRAMS
___________________________________________________________________________________________________
P.3
6
Connection Diagrams

Related product manuals