EasyManua.ls Logo

Nibe ES - Page 27

Nibe ES
Print Icon
To Next Page IconTo Next Page
To Next Page IconTo Next Page
To Previous Page IconTo Previous Page
To Previous Page IconTo Previous Page
Loading...
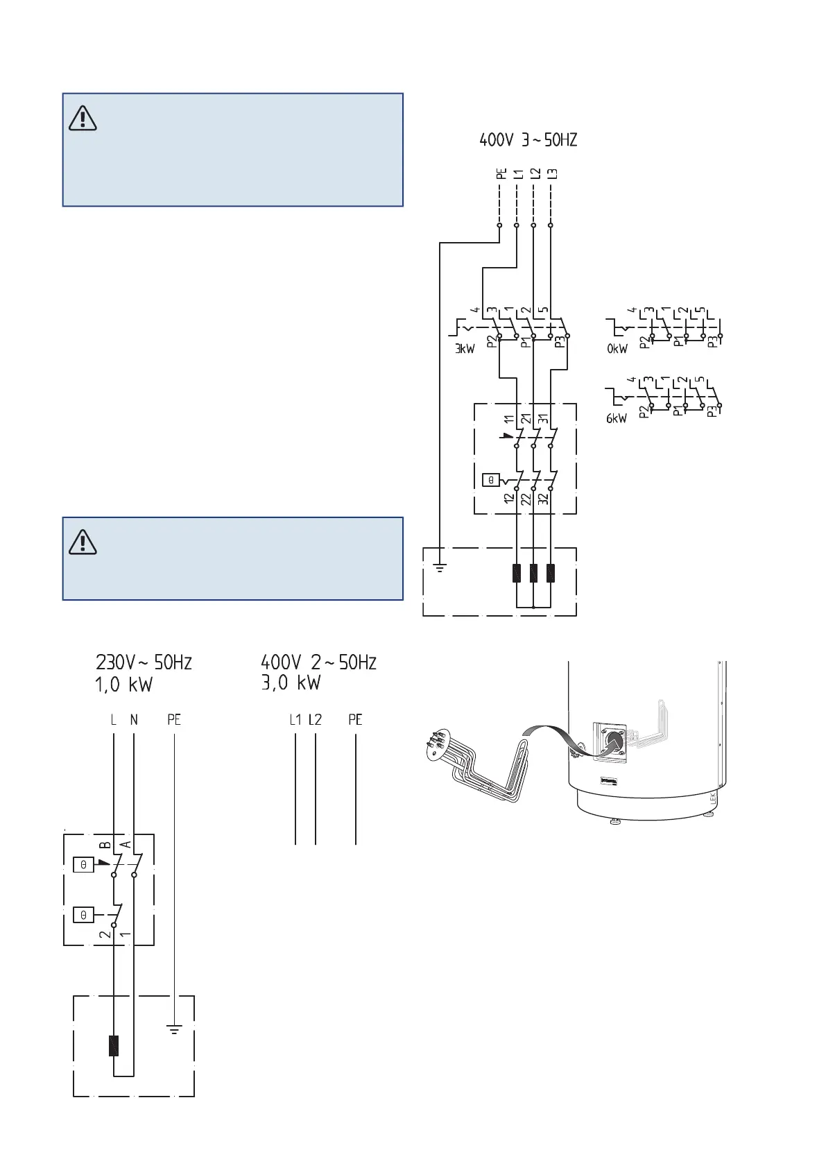
SÄHKÖASENNUS
HUOM!
Sähköasennukset ja mahdolliset huollot saa tehdä
vain valtuutetun sähköasentajan valvonnassa ja
voimassa olevien sähköturvallisuusmääräysten
mukaisesti.
ES 160, ES 210, ES 300 pitää kytkeä kaikkinapaisella turva-
kytkimellä, jonka kosketinväli on vähintään 3 mm. Johdinalan
tulee vastata käytettävää varoketta.
Kytke jännitteensyöttö liitinrimaan (X1) kytkentäkaavion
mukaisesti.
ES 160 ja ES 210 vakioteho on 3 kW (400 V~, 2-vaihe). Läm-
minvesivaraaja voidaan haluttaessa kytkeä 230 V ~ 1-vaihe-
jännitteeseen, teho rajoitetaan silloin 1 kW:iin.
ES 160 ja ES 210 on tilauksesta saatavana myös 6 kW mallina
(400 V~, 3-vaihe).
ES 300 toimitusteho 6 kW.
ES 160, ES 210, ES 300 :ssa on sähkövastus, joka on asen-
nettu laipalla Ø 80 mm asennusaukkoon, mikä helpottaa sen
irrotusta sekä mahdollistaa säiliön sisäpuolen tarkastuksen
ja puhdistuksen.
HUOM!
Lämminvesivaraaja pitää täyttää ennen kuin se
kytketään päälle.
Kytkentäkaavio 1 kW/ 3 kW
Vakio mallille ES 160 ja ES 210
Kytkentäkaavio 6 kW
Vakio mallille ES 300 sekä erikoisvarustus tilauksesta mallei-
hin ES 160 ja ES 210
6 kW sähkövastuksen asennus
LEK
Tehovalitsin (6 kW)
Lämminvesivaraajan tehovalitsin asetetaan haluttua tehoa
vastaavaan asentoon. Koska sähkövastuksen pintateho on
alin teholla 3 kW, sitä pitää käyttää ensisijaisesti. Jos halu-
taan suurempi teho, esim. yötaksan aikaan, tehovalitsin
asetetaan asentoon 6 kW.
27NIBE ES | FI

Related product manuals