EasyManua.ls Logo

Nibe ES - Page 9

Nibe ES
Print Icon
To Next Page IconTo Next Page
To Next Page IconTo Next Page
To Previous Page IconTo Previous Page
To Previous Page IconTo Previous Page
Loading...
ELEKTRISK INSTALLATION
OBS!
Elinstallation samt eventuell service ska göras
under överinseende av behörig elinstallatör och
enligt gällande elsäkerhetsföreskrifter.
ES 160, ES 210, ES 300 ska installeras via allpolig brytare
med minst 3 mm brytaravstånd. Minsta kabelarea ska vara
dimensionerad efter vilken avsäkring som används.
Anslut inkommande matning till kopplingplint, inkommande
matning (X1) enligt elschema.
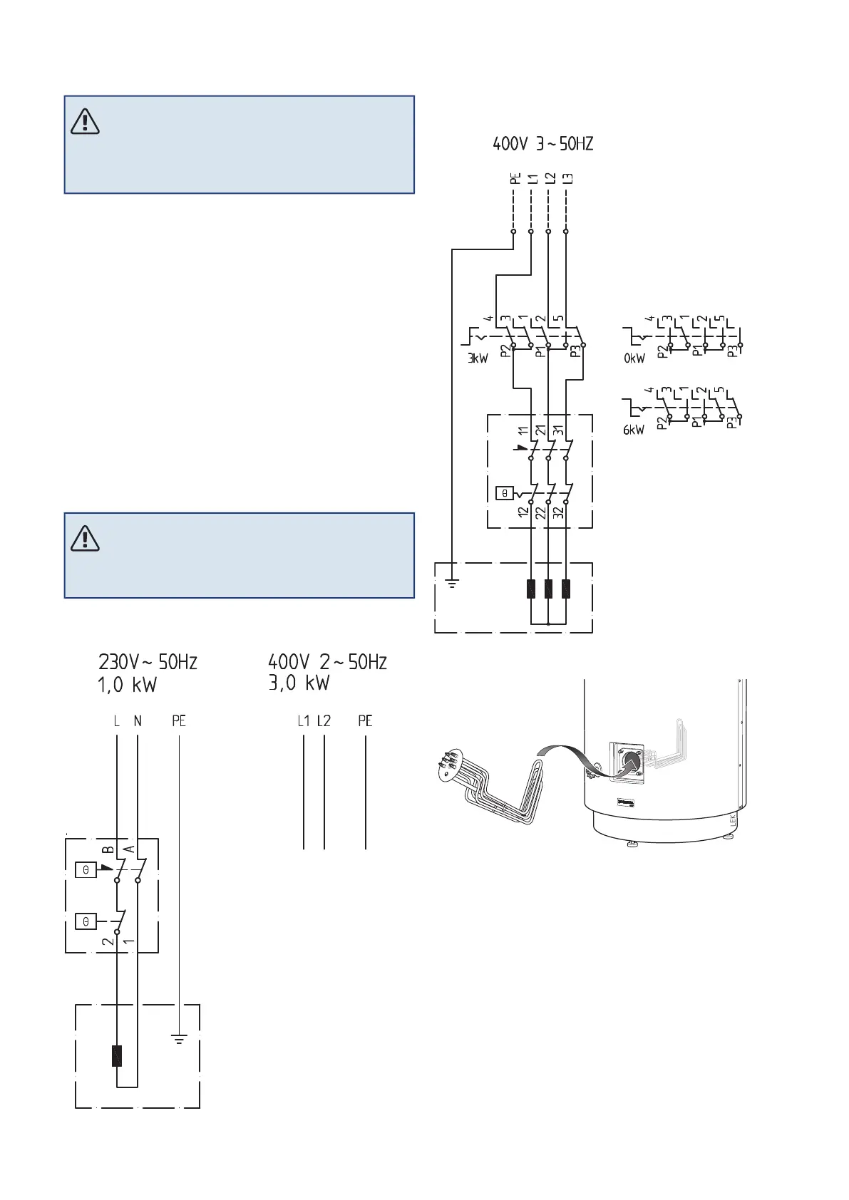
ES 160 och ES 210 har standardeffekt 3 kW (400 V~, 2-fas).
Om önskas kan beredaren anslutas till 230 V~ 1-fas, vilket
begränsar effekten till 1 kW.
ES 160 och ES 210 kan även erhållas i 6 kW utförande (400
V~, 3-fas) särskild beställning.
ES 300 levereras endast med effekten 6 kW.
ES 160, ES 210, ES 300 har flänsad elpatron av rostfritt stål
mot Ø 80 mm anslutningsöppning vilket medger enkel de-
montering samt möjliggör invändig inspektion och rengöring
av behållaren.
OBS!
Varmvattenberedaren ska vara helt fylld med vat-
ten innan den spänningssätts.
Elschema 1 kW/ 3 kW
Standard för ES 160 och ES 210
Elschema 6 kW
Standard för ES 300 samt alternativt utförande särskild
beställning för ES 160 och ES 210
Montering av 6 kW elpatron
LEK
Effektväljare (6 kW)
Varmvattenberedarens effektväljare ställs den effekt
som önskas. Eftersom elpatronen får lägst yteffekt vid 3 kW,
bör detta läge användas i första hand. När högre effekt
önskas, till exempel vid natt-taxa, ställs effektväljaren i läge
6 kW.
9NIBE ES | SE

Related product manuals