EasyManua.ls Logo

Nibe SCA 30 - Page 6

Nibe SCA 30
Print Icon
To Next Page IconTo Next Page
To Next Page IconTo Next Page
To Previous Page IconTo Previous Page
To Previous Page IconTo Previous Page
Loading...
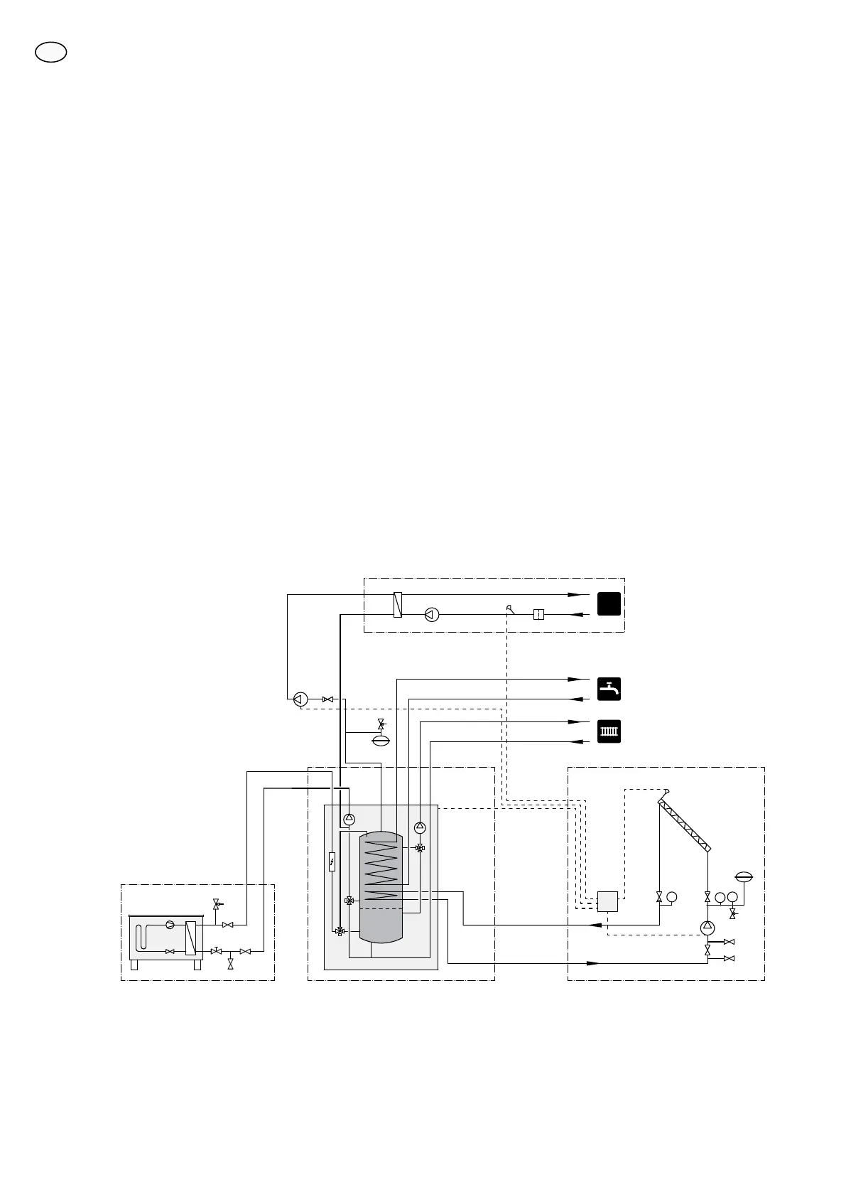
Systemprincip
Förklaring
Cirkulationspump, solGP4PoolsystemCL11
PumpsstationGP30Temperaturgivare, poolBT51
AvstängningsventilQM43-45VVM 500EB15
BackventilRM3-4Anslutning, Solsystem, FramXL13
ÖvrigtAnslutning, Solsystem, ReturXL14
Expansionskärl, värmesystemCM1F2026/F2300EB101
Säkerhetsventil, klimatsystemFL2SolsatsEP30
Cirkulationspump för kylning mot poolGP14TillbehörskortAA5
BackventilRM6Temperaturgivare, solfångareBT53
ExpansionskärlCM5
SolpanelEP8
Beteckningar enligt standard IEC 61346-2.Säkerhetsventil, solFL4
Dockning till solanläggning
Solvärmen överförs till VVM 500 genom solslingan i nedre delen av VVM 500. När varmvattenbehovet är uppfyllt kan,
om behov finns, solvärme användas till uppvärmning av bostaden. Möjlighet finns även att värme en pool när värme och
varmvattenbehov är tillgodosett.
Principschema
-EB101
-FL2
-CM1
-EB15
XL39
XL13
XL14
POOL
-BT51
-CL11
-BT53
-EP8
-AA5
-CM5
-GP4
-QM45
-RM3
-QM43
-QM44
T P
-FL4
-RM4
T
-GP30
-EP30
-GP14
-RM6
OBS! Detta är ett principschema. Verklig anläggning skall projekteras enligt gällande normer.
6
SE