EasyManua.ls Logo

Nice Pro-H - Limit Switch Adjustment; Limit Switch Adjustment Warning; Door Travel Adjustment Procedure

Nice Pro-H
44 pages
Print Icon
To Next Page IconTo Next Page
To Next Page IconTo Next Page
To Previous Page IconTo Previous Page
To Previous Page IconTo Previous Page
Loading...

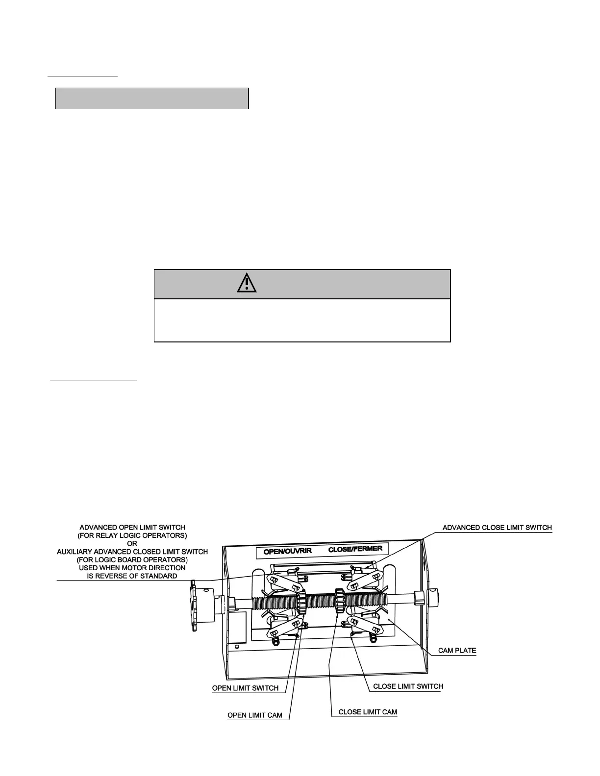
SECTIN or all operator control types
Adustment of door travel is done by moving the limit cams on the threaded shaft. The position of the limit
switches are factory adusted and should not be altered. The limit switches are
- pen limit switch End of door travel in the fully open position
- Closed limit switch End of door travel in the fully closed position
- Advanced pen or Auxiliary advanced closed limit switch
A or relay logic operators this advanced open limit switch is used for openclose devices or
timer to close features.
 or logic board this auxiliary closed limit switch is used for openclose devices used when
motor direction is reverse of standard.
- Advanced Closed imit switch sed to prevent reversing device from reversing
door when door is almost fully closed.
To adust door travel
. pen cycle epress cam plate and spinpen limit cam away from pen limit switch to increase door
travel or spin pen limit cam towards the pen limit switch to decrease door travel. After each
adustment ensure that cam plate fully engages in slots of both limit nuts.
. Adust pen limit cam so that door stops at the desired fully open position.
. Close cycle epress cam plate and spinClose limit cam away fromClose limit switch to increase door
travel or spin Closelimit cam towards the Close limit switch to decrease door travel. After each
adustment ensure that cam plate fully engages in slots of both limit nuts.
. Adust Close limit cam so that door stops at the desired fully closed position.
IMIT SITC ASTMENT
ANIN
T ECE TE IS  INY  EAT  NT
ATTEMT T MAE IMIT SITCASTMENTS
NESS E AS EEN EECTICAY ISCNNECTE

Related product manuals