EasyManua.ls Logo

Nice RO 300 - Descripción del Producto

Default Icon
100 pages
Print Icon
To Next Page IconTo Next Page
To Next Page IconTo Next Page
To Previous Page IconTo Previous Page
To Previous Page IconTo Previous Page
Loading...
E
53
1) Descripción del producto
Esta central para la automatización de cancelas o puertas
automáticas permite accionar los actuadores ROBO, OTTO, THOR
de corriente alterna monofásica.
De acuerdo con el tipo de actuador que se ha de accionar, la central
tiene variantes, tales como: “Regulación de Fuerza”, “Indicador
luminoso Cancela Abierta” y “Luz de cortesía”.
Además, cuenta con una serie de funciones que se seleccionan por
medio de los “Dip-Switches” (mini-selectores) y regulaciones que se
realizan con los trimmers.
En la central hay leds situados cerca de las entradas que indican el
estado; otro led, colocado cerca del microprocesador, indica que la
lógica interior funciona correctamente.
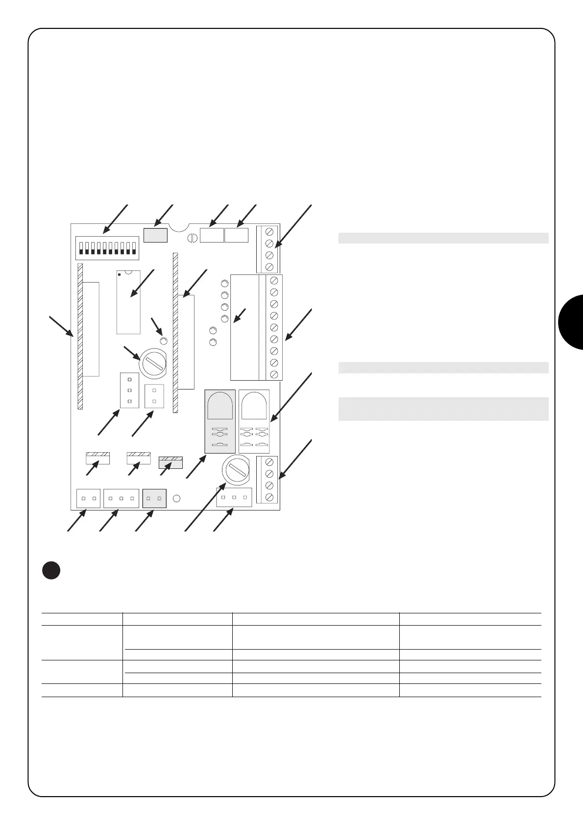
Para reconocer más fácil las piezas en la fig.1 se muestran los
componentes más importantes.
LMNOP
J
QRST
VU
I
X
W
Y
H
G
FZ
EDCBA
CH
P. P.
AP
FOTO
FCA
FCC
OK
Dip-Switch de selección de las funciones
Trimmer de regulación Fuerza
Trimmer de regulación Tiempo Funcionamiento TL
Trimmer de regulación Tiempo Pausa TP
Caja de conexiones para la antena y 2° canal
Conexión tarjeta RADIO
Led de indicación del estado de las entradas
Caja de conexiones Entradas / Salidas de mando
Relé Común
Caja de conexiones alimentación / Luz intermitente
Conector primario del transformador
Fusible de línea (5A)
Conector de salida de la Luz de Cortesía (sólo en OTTO)
Salida alimentación motor
Conector del condensador
Relé “Punto de arranque”
Triac “Luz de cortesía” (sólo en OTTO)
Triac “Cerrar”
Triac “Abrir”
Conector secundario del transformador
Entrada fin de carrera FCA / FCC
Fusible de baja tensión (500mA)
Conexión tarjeta PIU
Led OK
Microprocesador
A
B
C
D
E
F
G
H
I
J
L
M
N
O
P
Q
R
S
T
U
V
W
X
Y
Z
1
Código Producto* Código Central de mando* Función Adicional
ROBO
RO1000
RO1020
ROA3 Trimmer de “Regulación Fuerza”
RO1010 ROA4 Relé “Punto de arranque”
THOR
TH1551 THA5 Trimmer de “Regulación Fuerza”
TH2251 THA6 Relé “Punto de arranque”
OTTO OT21 OTA1 Salida “Luz de cortesía”
* = añadir al código V1 para versión 120 V 50/60 Hz

Table of Contents

Related product manuals