EasyManua.ls Logo

Nice SD Series - Page 38

Nice SD Series
100 pages
Print Icon
To Next Page IconTo Next Page
To Next Page IconTo Next Page
To Previous Page IconTo Previous Page
To Previous Page IconTo Previous Page
Loading...
8 – Français
FR
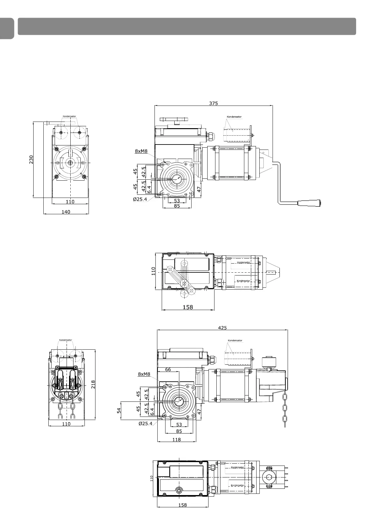
Motoréducteurs de 230 V
Ø 10 mm
SCHÉMAS CÔTÉS MOTORÉDUCTEURS POUR PORTES SECTIONNELLES
SW-70-20-KU
SW-70-20-E
SW-70-20-KE

Related product manuals