EasyManua.ls Logo

Nice SD Series - Page 52

Nice SD Series
100 pages
Print Icon
To Next Page IconTo Next Page
To Next Page IconTo Next Page
To Previous Page IconTo Previous Page
To Previous Page IconTo Previous Page
Loading...
8 – Español
ES
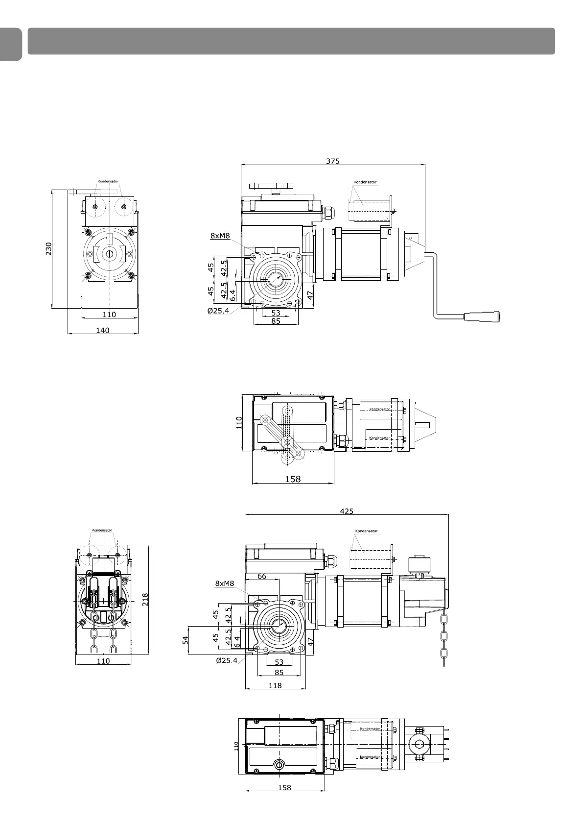
ESQUEMAS ACOTADOS DEL MOTORREDUCTOR PARA PUERTAS SECCIONALES
Motorreductores de 230 V
Ø 10mm
SW-70-20-KU
SW-70-20-E
SW-70-20-KE

Related product manuals