EasyManua.ls Logo

Nice SD Series - Page 94

Nice SD Series
100 pages
Print Icon
To Next Page IconTo Next Page
To Next Page IconTo Next Page
To Previous Page IconTo Previous Page
To Previous Page IconTo Previous Page
Loading...
8 – Nederlands
NL
Reductiemotoren 230V
Ø 10mm
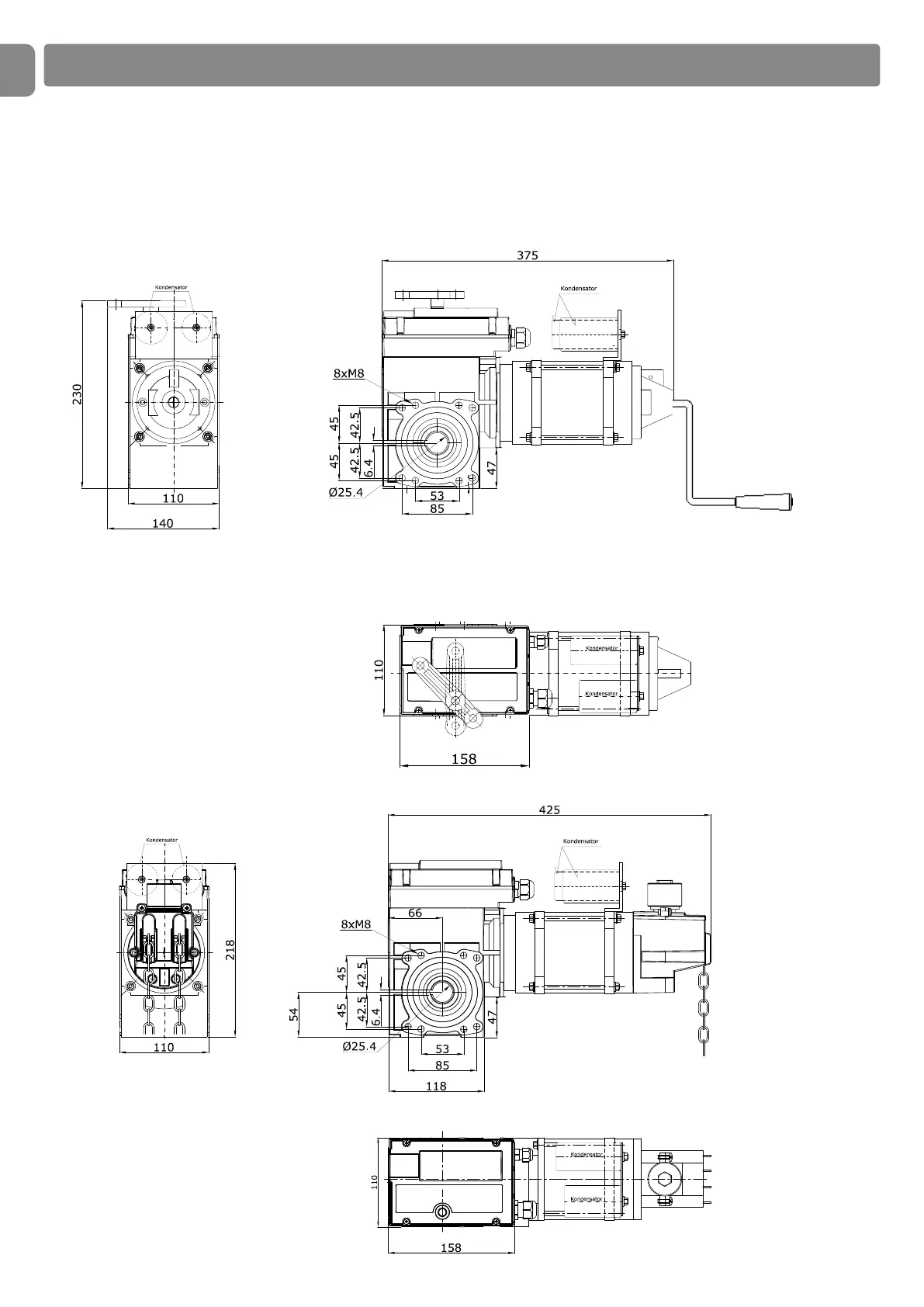
MAATSCHETSEN REDUCTIEMOTOREN VOOR SECTIONALE DEUREN
SW-70-20-KU
SW-70-20-E
SW-70-20-KE

Related product manuals