EasyManua.ls Logo

Nietz ESD2 - Chapter 1 Introduction of Frequency Conversion; Name of each Part of Frequency Converter; Inverter Model and Technical Data; Technical Features of Frequency Converter

Nietz ESD2
14 pages
Print Icon
To Next Page IconTo Next Page
To Next Page IconTo Next Page
To Previous Page IconTo Previous Page
To Previous Page IconTo Previous Page
Loading...
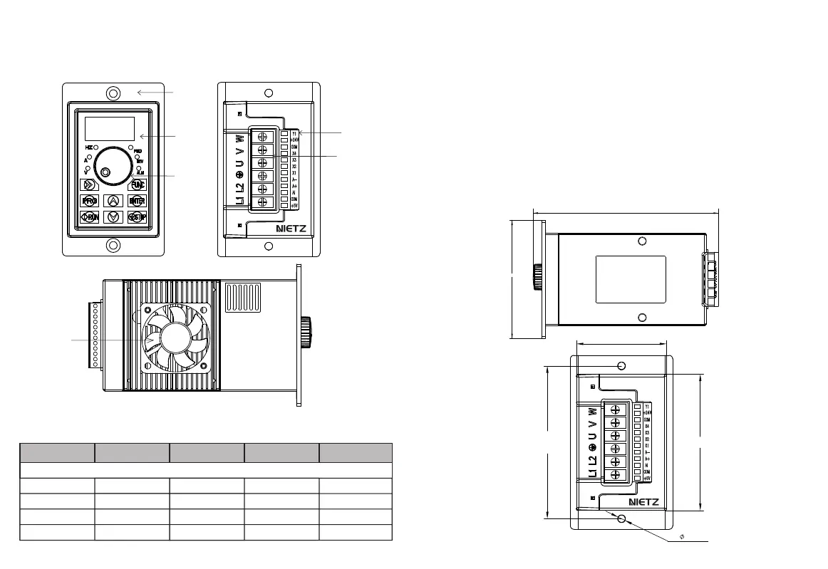
1.1 Name of each part of frequency converter
Chapter 1 Introduction of Frequency Conversion
1.2 Inverter Model and Technical Data
1.3 Technical Features of Frequency C onve r te r
The output frequency range is 0-300 Hz;
The op eration panel has its own s peed re gulating poten tiometer ;
Built-in P I D regu lator c an real ize c losed-lo op regu lation;
Built-in P I D regu lator c an real ize c losed-lo op regu lation;
Multifun ctional open c ollector output;
Suppor t an alog input 0-5 V;
The V/ F cur ve function can be set a rbitrar ily to meet t he requ irements of speci al occ asions;
Use th e Shif t key to view real-tim e param eters,
Adopt a new g enerati on I P M module with co mplete protection functions ;
1.4 Inst allatio n Dimen sions of Freq uency C onverter
-1-
-2-
Signal terminal
Main terminal
Plastic casing
Panel sticker
Potentiometer
Fan
Figure1-1
Table 1-1 Frequency Converter Model and Technical Data
Inver ter Model
Single phase power supply:200~240VAC,50/60Hz
Power supply capacity
K VA
Input Current
A
Output Current
A
Adaptive motor
K W
3 . 0 2 . 3 1 . 6 0 . 2
3 . 8 3 . 2 2 . 1 0. 4
5 . 6 4 . 0 3 . 7 0 . 7 5
9 . 9 8 . 3 5 . 5 1 . 1
160mm
102mm
89,5mm
Hole spacing
L:80mm
2- 4,5mm
series frequency converter has convenient speed regulation, good hand feeling of potentiometer
knob, optimized structure, forced air cooling, strong electromagnetic compatibility, complete parameter
functions, instrument installation, external operation panel, large low frequency torque, optimized P W M
complete protection function and fast response.
W:53mm
ESD2
ESD2-0R2G1; 0.2kw
ESD2-0R4G1; 0.4kw
ESD2-0R7G1; 0.75kw
ESD2-1R1G1; 1.1kw