EasyManua.ls Logo

nilan VPL 15 Top - System Dimension

nilan VPL 15 Top
23 pages
Print Icon
To Next Page IconTo Next Page
To Next Page IconTo Next Page
To Previous Page IconTo Previous Page
To Previous Page IconTo Previous Page
Loading...
This document may be subject to change Side 22 of 23
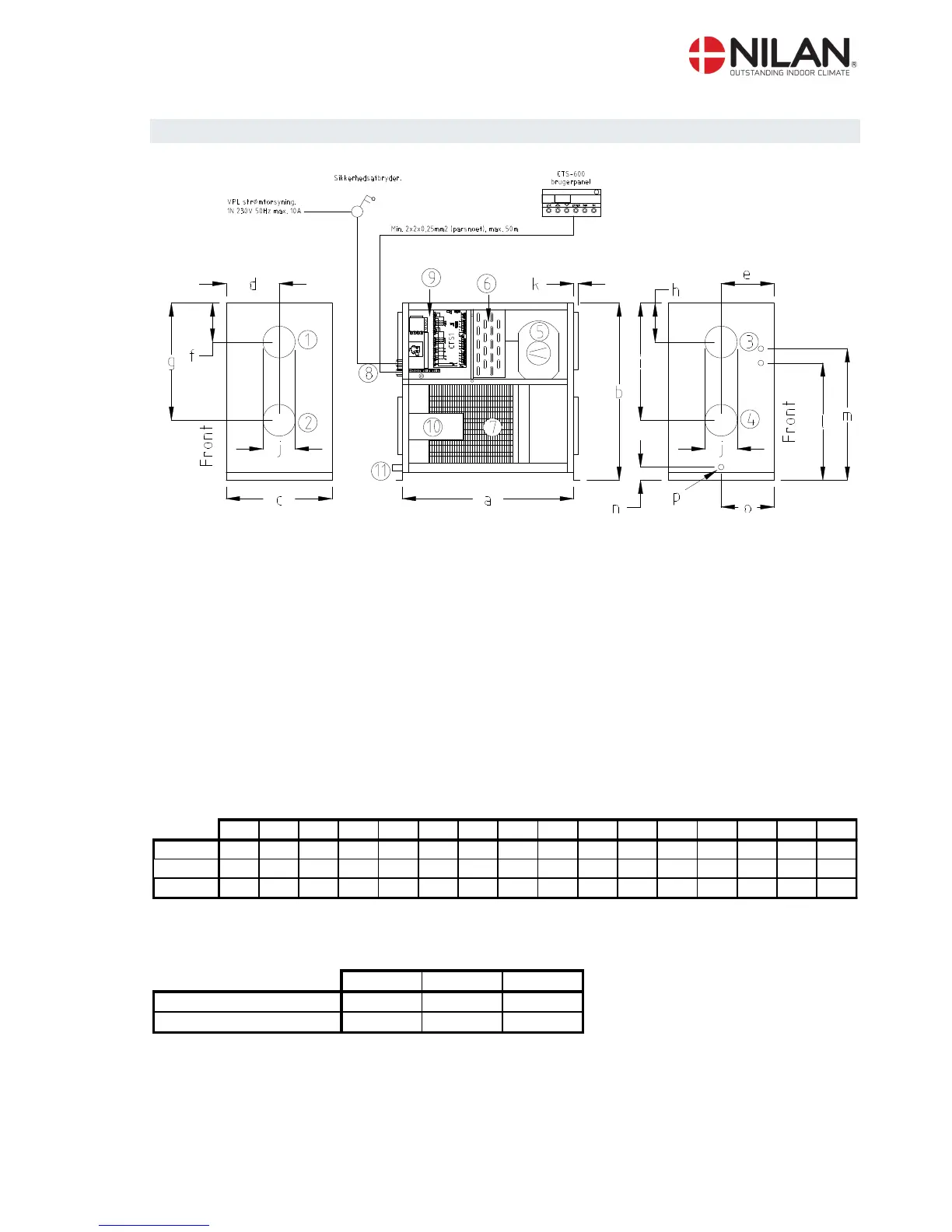
System dimension
Figure 17: System dimension
1. Fresh air intake. 5. Compressor 9. Inlet fan
2. Exhaust 6. Condensator (hidden) 10. Exhaust fan
3. Inlet 7. Evaporator 11. Condensation drain
4. Discharge 8. Electrical connections
Dimensions in mm:
a b c d e f g h i j k l m n o p
VPL15 650 680 400 200 200 90 410 90 410 Ø160 38 450 510 50 200 Ø20
VPL15T 550 600 635 50 95 190 140 140 160 160 160 160 - - - -
VPL25 700 760 570 285 215 160 480 205 505 Ø250 44 505 540 25 85 Ø20
Weight in kg.:
VPL15 VPL15T VPL25
Unit 54 50 65
Filterunit with Heat-pipe 30 - 40
Right
Left
Front

Related product manuals