EasyManua.ls Logo

Noritz N-063S - Electrical Wiring; Grounding and Breaker Installation

Noritz N-063S
66 pages
Print Icon
To Next Page IconTo Next Page
To Next Page IconTo Next Page
To Previous Page IconTo Previous Page
To Previous Page IconTo Previous Page
Loading...
52
Do not connect electrical power to the unit until all electrical wiring has been completed.
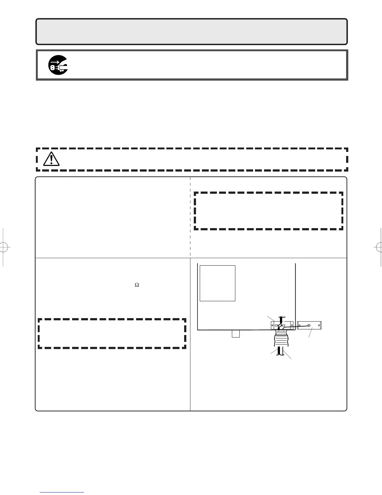
1.Unscrew the junction box lid and open.
2.Push the power cord through the bottom of the unit.
3.Connecct the live and neutral wires to the black and
white wire in the junction box.
4.Screw the ground wire to the ground screw on the
back of the junction box lid and close junction box.
Consult a qualified electrician
for the electrical work.
12.
Electrical Wiring
Do not turn on the power until the electrical wiring is finished.
This may cause electrical shock or damage to the equipment to occur.
This appliance must be electrically grounded in accordance with local codes, or in the absence of local codes,
with the National Electrical Code, ANSI/NFPA 70. In Canada, the latest CSA C22.1 Electrical Code.
Caution: Label all wires prior to disconnection when servicing controls. Wiring errors can cause improper
and dangerous operation.
Verify proper operation after servicing.
Field wiring to be performed at time of appliance installation.
Caution
The electrical supply required by the water
heater is 120V AC at 60 Hz.
The power consumption may be up to 125W or
higher if using optional accessories.
Use an appropriate circuit.
Do not disconnect the power supply when not in
use. When the power is off, the freeze preven-
tion in the water heater will not activate,
resulting in possible freezing damage.
Do not let the power cord contact the gas piping.
Tie the redundant power cord outside the
water heater. Putting the redundant length
of cord inside the water heater may cause
electrical interference and faulty operation.
Ground
To prevent electrical shock, provide a ground
with resistance less than 100 . An electrician
should do this work.
•A grounding screw is provided on the back of
the junction box lid.
Do not connect the ground to the city water
or gas piping. Do not tie the ground to a tele-
phone line.
Breaker Installation
Mount a device which shuts off the electrical
path automatically (leakage breaker) when
electrical leakage is detected.
Junction Box
Junction Box Lid
(back)
Power Cord
Ground
En069M/n063S(4858)J.p65 05.10.11, 10:57 PMPage 52 AdobePageMaker6.5J/PPC

Related product manuals