EasyManua.ls Logo

Noritz N-063S - Connecting Quick Connect Cord

Noritz N-063S
66 pages
Print Icon
To Next Page IconTo Next Page
To Next Page IconTo Next Page
To Previous Page IconTo Previous Page
To Previous Page IconTo Previous Page
Loading...
60
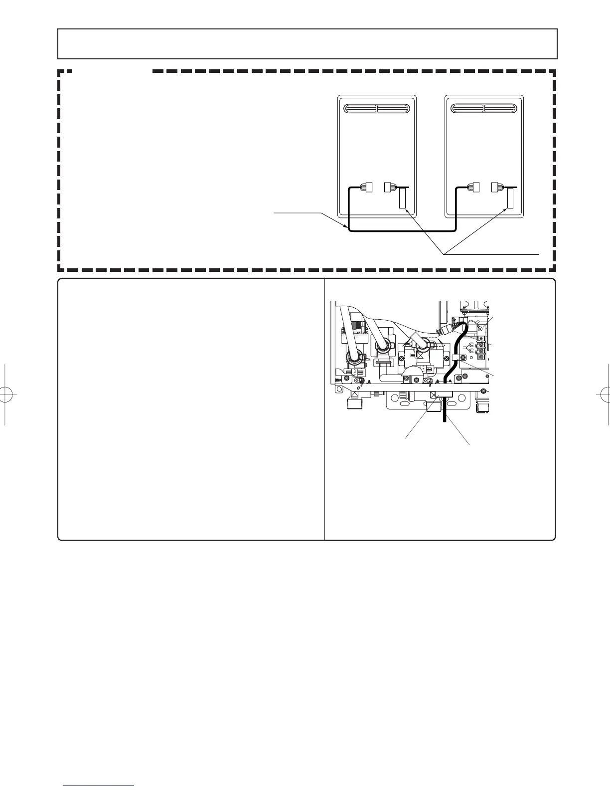
Connecting Quick Connect Cord
The wire coloring on the Quick Connect Cord will
not be the same as the wire coloring of the
connection plug inside the unit.
* The remote controller can be connected to either
unit A or B.
Caution
For Quick Connect Multi System Installation
usa a Quick Connect Cord (sold separately).
Quick Connect
Cord
"Quick Connect Cord" tag
AB
1.Red
2.Black
3.White
4.Green
5.Blue
6.Blue
1.Red
2.Black
3.White
4.Green
5.Blue
6.Blue
1.Red
2.Black
3.White
4.Green
5.Blue
6.Blue
1.White
2.Green
3.Red
4.Black
5.Blue
6.Blue
Connecting the Quick Connect Cord to the two
units.
1. Turn off the power.
2. Remove the front cover of the heater (4 screws).
3. Pass the Quick Connect Cord through the wiring
throughway and into the unit.
4. Plug the connector on the Quick Connect Cord to
the receptacle inside the unit.
5. Attach the ground wire of the Quick Connect
Cord to the terminal block fixing plate.
(If the ground wire is not attached, electrical nois
may cause problems).
6. Secure the Quick Connect Cord with a clamp.
7. Replace the front cover.
Wiring Throughway
Coupling Cord
Clamp
Ground wire
Connector
Connector
En069M/n063S(5966)J.p65 05.10.11, 10:57 PMPage 60 AdobePageMaker6.5J/PPC

Related product manuals