EasyManua.ls Logo

Noritz NCC300DV - Page 51

Noritz NCC300DV
54 pages
Print Icon
To Next Page IconTo Next Page
To Next Page IconTo Next Page
To Previous Page IconTo Previous Page
To Previous Page IconTo Previous Page
Loading...
51
120VAC
System Controller Unit
Water heater
Terminals
(Units 1 - 12)
Remote Controller Cord
Remote Controller Cord
Remote Controller Cord
Remote Controller Cord
terminal block
Remote Controller Cord
terminal block
Remote Controller Cord
terminal block
PCB
Power
PCB
PCB
Power
PCB
PCB
Power
PCB
Remote Controller Cord
Remote
Controller
System controller
power supply
Unit 1
Unit 2
Unit 3
CAUTION
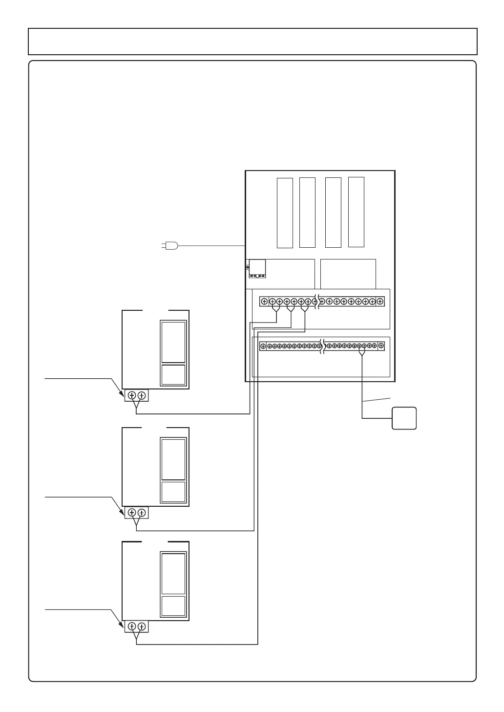
• The below diagram shows the connection of 3 units to the system controller. When connecting 4
or more units, follow the same procedure.
Connect the water heaters to the system controller follwing the detailed wiring instructions
included with the system controller.
Always connect a remote controller to the system controller. Do not connect the included remote
controllers to the individual water heaters. These remote controllers will not be used.
* The remote controller terminal location
may di󰀨er depending on the unit.
Multi-System Wiring (Use SCU-301-12M, SCU-401-12M/24M)

Related product manuals