EasyManua.ls Logo

Nortek MGC2SD-E - Component Locations for Non-Condensing Type Furnaces

Nortek MGC2SD-E
12 pages
Print Icon
To Next Page IconTo Next Page
To Next Page IconTo Next Page
To Previous Page IconTo Previous Page
To Previous Page IconTo Previous Page
Loading...
7
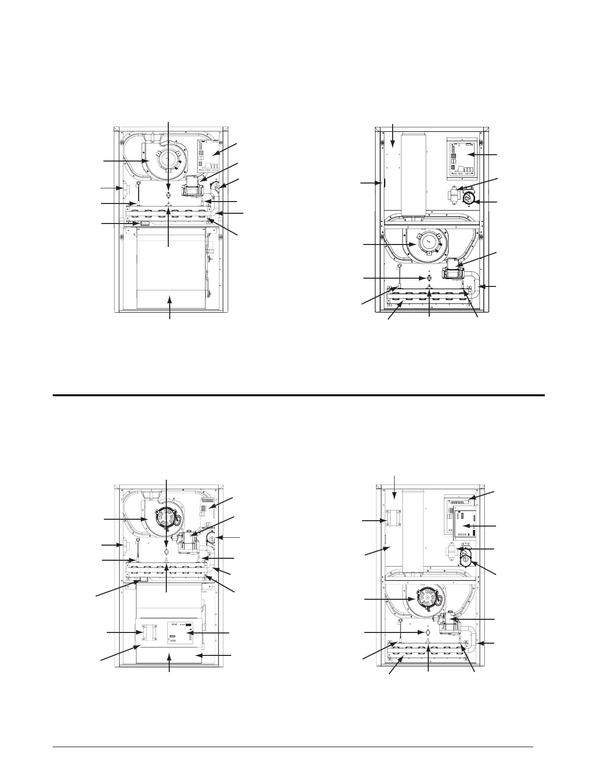
COMPONENT LOCATIONS FOR NON-CONDENSING TYPE FURNACES
Single Stage Models
2- Stage Models
Blower
Door
Switch
Burner
Assembly
Flame Sensor
Gas
Manifold
Gas Valve
Igniter
Inducer
Assembly
Pressure
Switch
Roll-Out
Switch
Tr
ansformer
Blower
Assembly
Furnace
Control
Board
Main Air
Limit Switch
Combustion Tube
Gas
Manifold
Gas Valve
Inducer
Assembly
Pressure
Switch
Transfor
mer
Blower Assembly
(behind blower panel)
Burner
Assembly
Flame
Sensor
Roll-Out
Switch
Igniter
Main Air
Limit Switch
Blower
Door Switch
(behind blower panel)
*SA 80+
Upflow / Horizontal Gas Furnace
*SK 80+
Downflow Gas Furnace
Furnace
Control
Board
1 2 3
4
5 6 7
8
Motor Choke
(C & D cabinets only)
Motor Control
Board
Motor
Control Box
Blower
Door
Switch
Burner
Assembly
Flame Sensor
Gas Manifold
Gas Valve
Igniter
Inducer
Assembly
Pressure
Switch
Roll-Out Switch
Transformer
Blower
Assembly
Furnace
Control Board
Main Air
Limit Switch
1 23
4
5 67
8
Furnace
Control
Board
Combustion Tube
Gas Manifold
Gas Valve
Inducer
Assembly
Pressure
Switches
Transformer
Burner
Assembly
Flame
Sensor
Roll-Out
Switch
Igniter
Main Air
Limit Switch
Blower
Door Switch
(behind blower panel)
Motor Choke
(C & D cabinets only)
Motor
Control
Board
Blower Assembly
(behind blower panel)
*TA 80+
Upflow / Horizontal Gas Furnace
*TK 80+
Downflow Gas Furnace

Related product manuals