EasyManua.ls Logo

NorthFlo PSNF50 - Installation

NorthFlo PSNF50
31 pages
Print Icon
To Next Page IconTo Next Page
To Next Page IconTo Next Page
To Previous Page IconTo Previous Page
To Previous Page IconTo Previous Page
Loading...
22
référence seulement. Notez que cet appareil est sujet à des améliorations périodiques,
sans autre avis.
V. Installation
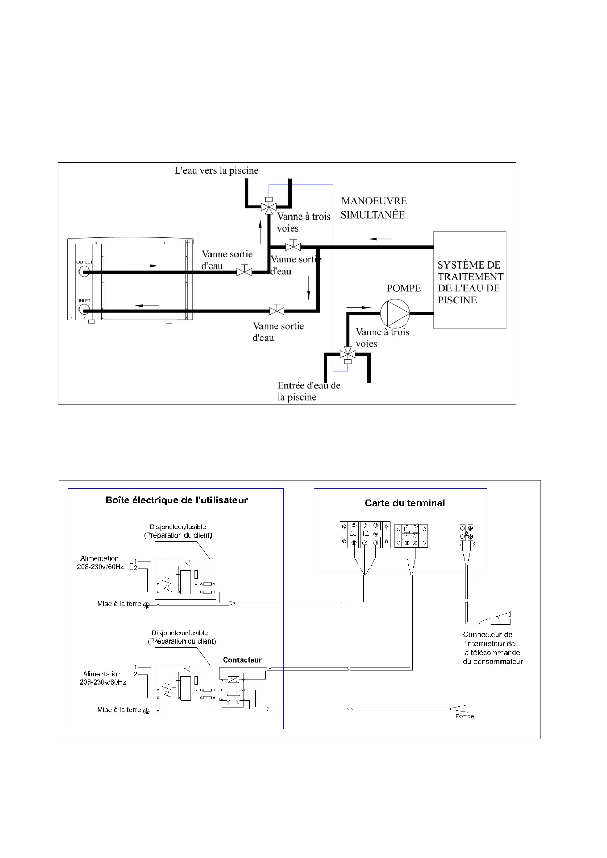
1. Dessin des connections des tuyaux d’eau
Note: Cette illustration de la disposition des tuyaux est fournie à titre de référence seulement.
2. Dessin du réseau électrique
NoteLa mise à la terre de l’appareil doit être correctement effectuée.

Related product manuals