EasyManua.ls Logo

NTI FTG 600 - Page 49

NTI FTG 600
88 pages
Print Icon
To Next Page IconTo Next Page
To Next Page IconTo Next Page
To Previous Page IconTo Previous Page
To Previous Page IconTo Previous Page
Loading...
FTG Installation & Operation Manual
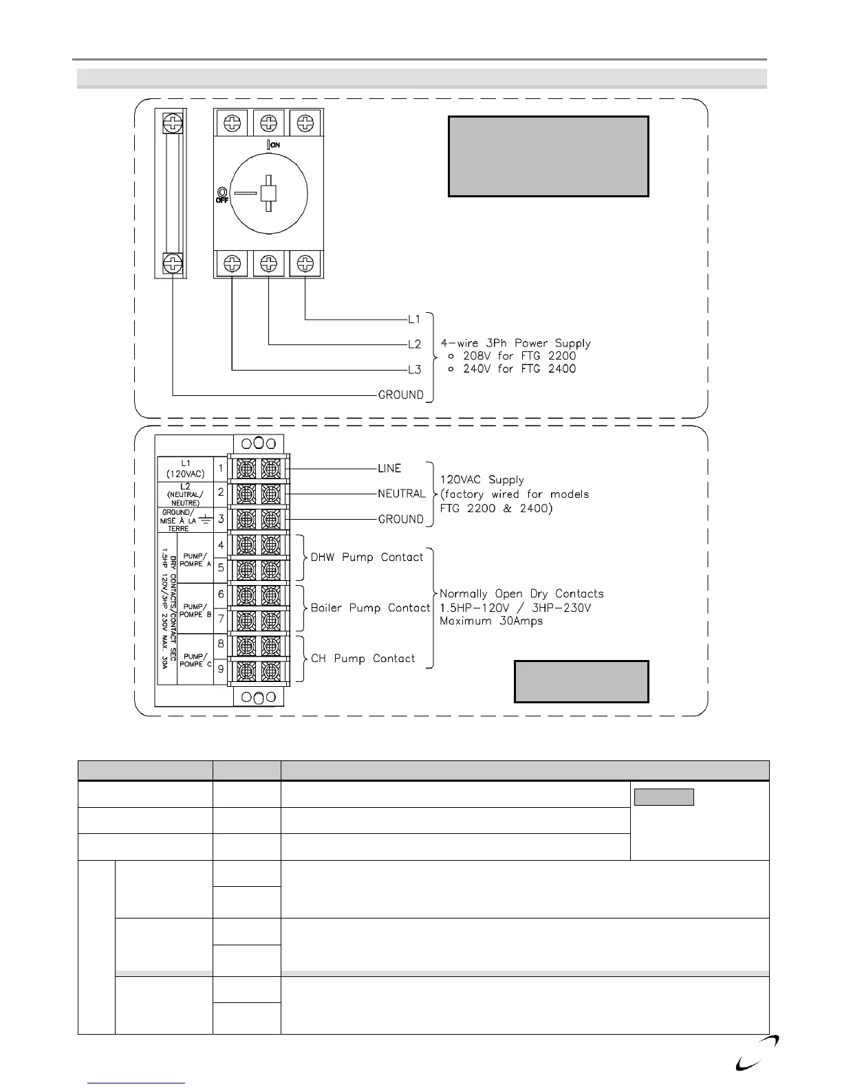
Figure 12-2 Line Voltage Field Wiring
Table 12-1 Line Voltage Field Wiring Connections
Connection
Location
Description
L1 (120VAC)
1
Location for connecting line wire of 120V power supply.
NOTICE: 120V
power supply is factory
wired for models FTG
2200 & 2400.
L2 (Neutral)
2
Location for connecting neutral wire of 120V power supply.
GROUND
3
Location for connecting earth ground.
Non-Powered
(Dry Contacts)
DHW PUMP
(PUMP A)
4
DHW Pump Relay Normally Open Dry Contact for DHW circulator; contact closes
during a demand for DHW. Maximum rating is 1.5HP @ 120V, 3.0HP @ 240V, or
30A.
5
BOILER
PUMP
(PUMP B)
6
Boiler Pump Relay Normally Open Dry Contact for Boiler circulator; contact closes
during all demands. Maximum rating is 1.5HP @ 120V, 3.0HP @ 240V, or 30A.
7
CH PUMP
(PUMP C)
8
CH Pump Relay Normally Open Dry Contact for Central Heating circulator;
contact closes during a demand for CH. Maximum rating is 1.5HP @ 120V, 3.0HP @
240V, or 30A.
9
LINE VOLTAGE
JUNCTION BOX
3PH DISCONNECT SWITCH
(FTG 2200/2400 ONLY)
Located at the back of the
boiler; see Figure 12-1

Other manuals for NTI FTG 600

Related product manuals