EasyManua.ls Logo

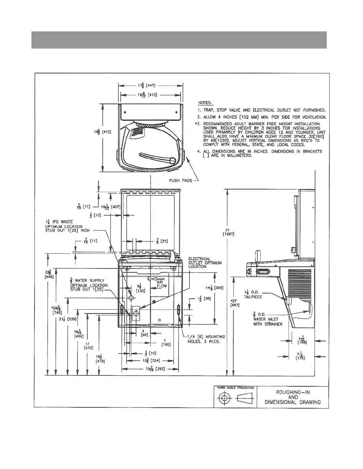
Oasis PACSL - Section 2: Rough in Drawing

Oasis PACSL
24 pages
Print Icon
To Next Page IconTo Next Page
To Next Page IconTo Next Page
To Previous Page IconTo Previous Page
To Previous Page IconTo Previous Page
Loading...
Oasis PWEBF: Versacooler
®
II Models PAC, P8AC with Hands-Free VersaFiller
Section 2: Rough In Drawing

Other manuals for Oasis PACSL

Related product manuals