EasyManua.ls Logo

Omron E3C-LDA Series - Accessories (Order Separately); Mounting Brackets; Mounting Bracket Attached

Omron E3C-LDA Series
85 pages
To Next Page IconTo Next Page
To Next Page IconTo Next Page
To Previous Page IconTo Previous Page
To Previous Page IconTo Previous Page
Loading...
F3W-E
10
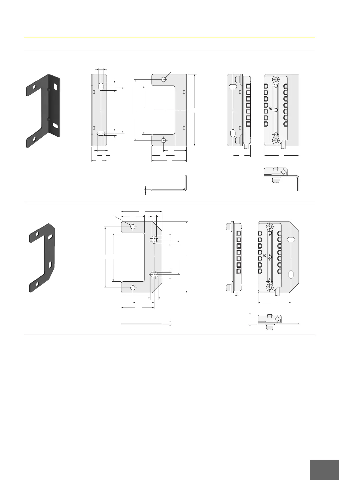
Accessories (Order Separately)
Two, 4.8 dia.
8
6
16
4.8
48
8
4.8
24
24
3618
36
50
63
74
1.5
Mounting Brackets
F39-LE2 (L-shaped)
Material: Iron (Thickness: 1.5 mm)
Mounting screws provided.
F3W-E032A@-D with Mounting Bracket
Two, 4.8 dia.
9.5
8
22 34
34
4.8
365063
74
4.8
42
24
8
1.5
Mounting Brackets
F39-LE1 (Flat)
Material: Iron (Thickness: 1.5 mm)
Mounting screws provided.
F3W-E032A@-D with Mounting Bracket

Related product manuals