EasyManua.ls Logo

Omron SYSMAC C60P - Page 23

Omron SYSMAC C60P
95 pages
Print Icon
To Next Page IconTo Next Page
To Next Page IconTo Next Page
To Previous Page IconTo Previous Page
To Previous Page IconTo Previous Page
Loading...
17
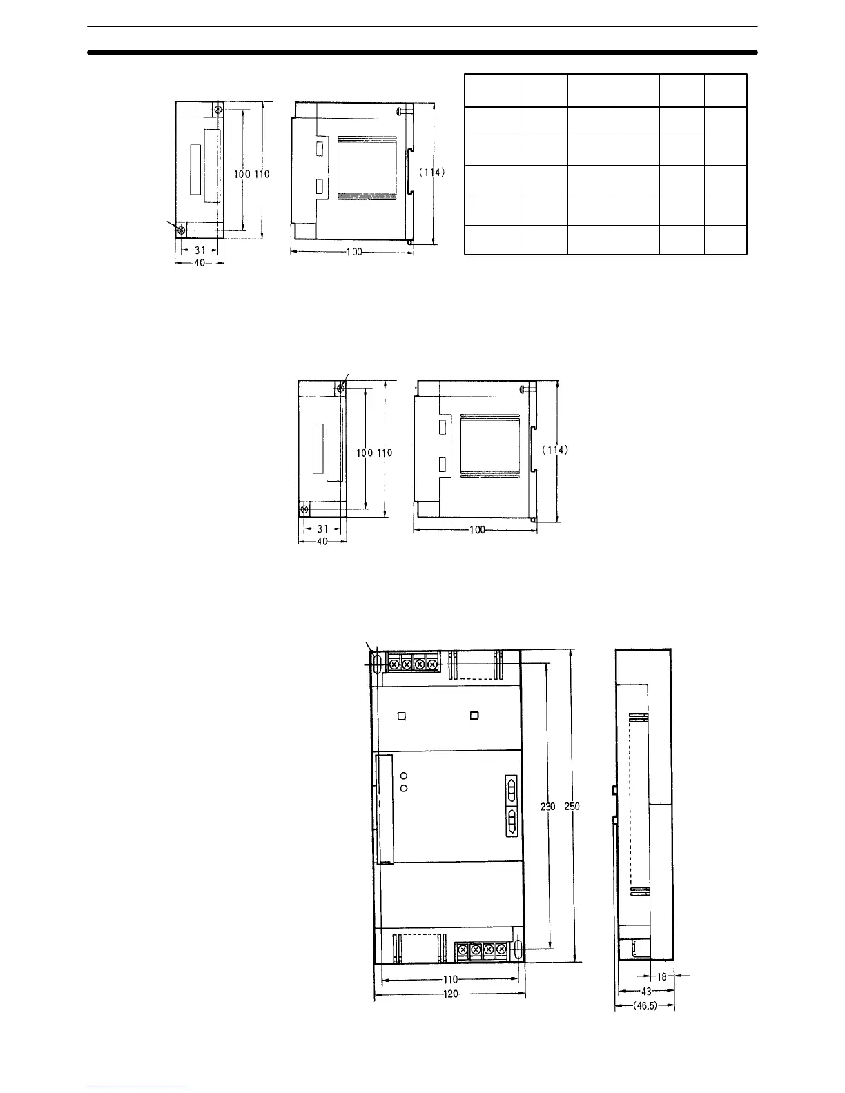
Model
C16P
C20P
C28P
C40P
C60P
A
145
240
240
290
340
B
155
250
250
300
350
C
100
100
100
100
120
D
110
110
110
110
140
E
5
5
5
5
15
C4K
Two, M4
Analog Timer Units C4K-TM
Two, M4
I/O Link Units C20-LK011(-P)
Two M4 holes
Dimensions and Installation Section 2-3

Related product manuals