EasyManua.ls Logo

Omron SYSMAC C60P - Page 77

Omron SYSMAC C60P
95 pages
Print Icon
To Next Page IconTo Next Page
To Next Page IconTo Next Page
To Previous Page IconTo Previous Page
To Previous Page IconTo Previous Page
Loading...
Specifications Appendix B
72
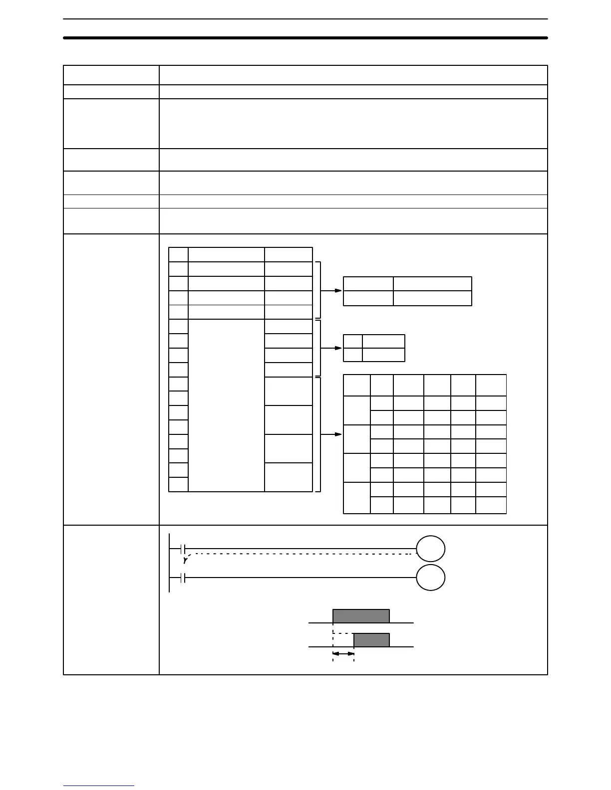
Analog Timer Unit Specifications
Bit
00
01
02
03
04
05
06
07
08
09
10
11
12
13
14
15
IR n
T
0
TimeExpiredFlag
T
1
TimeExpiredFlag
T
2
TimeExpiredFlag
T
3
TimeExpiredFlag
Cannot be used
IR (n + 5)
T
0
Start
T
1
Start
T
2
Start
T
3
Start
T
0
Pause
T
1
Pause
T
2
Pause
T
3
Pause
T
0
Range
T
1
Range
T
2
Range
T
3
Range
Item
Oscillation method
Time setting range
Timer pause
function
Number of timer
contacts
Indicators
External variable
resistor
Point number
assignment
Programming and
timing chart
Specifications
RC oscillation
Use the program to set any of the following four ranges, according to the chart shown below.
0.1 to 1 second
1 to 10 seconds
10 to 60 seconds
1 to 10 minutes
The timing operation can be paused if so specified by the program. therefore, the timers can also
be used as cumulative timers.
4
SET and TIME UP
External variable resistors can be used to set the time value when the IN/EXT selector is set to
EXT. Use 20 k
W external variable resistors
IR n “1” when time is up
IR (n + 5) “1” when time is set
0 Operates
1 Stops
Timer
no.
T
0
T
1
T
2
T
3
Bit
06
09
10
11
12
13
14
15
0.1 to
1 s
0
0
0
0
0
0
0
0
1 to
10 s
1
0
1
0
1
0
1
0
10 to
60 s
0
1
0
1
0
1
0
1
1 to
10 m
0
1
0
1
0
1
0
1
IR n 00 to 03
Timer start input
Timer up output
Time Start Control Bit
00 to 03 of IR (n +1)
Time expired output
IR n 00 to 03
Timer start
input
Time-up
output

Related product manuals