EasyManua.ls Logo

Outback Power Systems FX 2012T - Complete Outback Integrated Systems

Outback Power Systems FX 2012T
65 pages
Print Icon
To Next Page IconTo Next Page
To Next Page IconTo Next Page
To Previous Page IconTo Previous Page
To Previous Page IconTo Previous Page
Loading...
Installation & Programming Manual FX & VFX Series Inverter/Charger System Copyright 2003 OutBack Power Systems, Inc.
900-0027-1 19009 62
nd
Ave NE, Arlington WA 98223 USA
Page 10 Rev 7.2 08/26/05 Tel 360 435 6030 Fax 360 435 6019
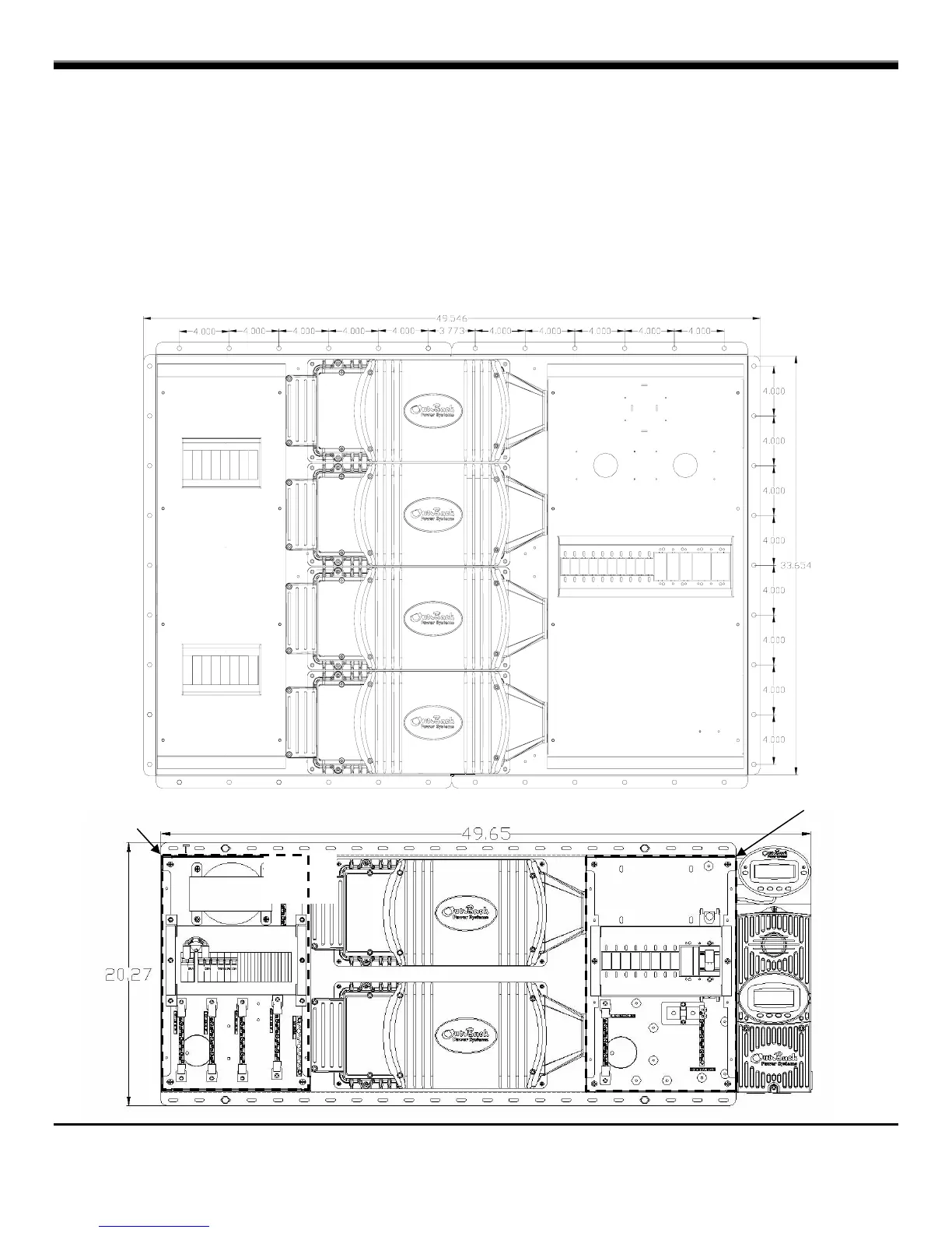
COMPLETE OUTBACK INTEGRATED SYSTEMS
Shown below are complete systems of OutBack FX’s for indoor installations. The system with four FX’s is shown mounted to the
OutBack PS4MP (Power System 4 Mounting Plate where the “4” in refers to the maximum number of FX’s that will fit). The PS4MP
comes with six 1x20mm thread forming screws for attaching FX’s and breaker boxes. The use of an external toothed star washer
(provided) is required on one screw on each piece of equipment in order to bite through the powder coating and ensure grounding of all
metal components. The system with two FX’s is shown mounted to the smaller PS2MP power system mounting plate.
The mounting plate will typically need to be bolted to the studs in a wall using at least four 1/4” or 5/16” lag bolts 2” long. In addition to
the mounting plate, these installations are also shown with an OutBack PS4DC or PS2DC (DC breaker box), PS4AC or PS2AC (AC
breaker box), DCAs (DC Conduit Adapter), DCCs (DC Compartment Cover), and ACAs (AC Compartment Adapter). When two or
more FX’s are installed in close proximity such as in this installation, it may be useful to install one or more DC-12 Fan Kits inside the
PS4DC or PS2DC (only one will fit) that will pressurize this enclosure – forcing air up through the DC Manifold and down over the
external fins of the FXs. This will improve the battery charging performance by reducing the possibility of the FX’s limiting charging due
to reaching their maximum allowed temperatures. The AUX output of the FX can be used to power the DC-12 Fan.
These components are designed to complete the installation to NEC code while offering flexibility for future expansion.
PS4DC
PS4AC
PS2AC
PS2DC

Table of Contents

Related product manuals