EasyManua.ls Logo

Packo AX - Page 18

Packo AX
28 pages
Print Icon
To Next Page IconTo Next Page
To Next Page IconTo Next Page
To Previous Page IconTo Previous Page
To Previous Page IconTo Previous Page
Loading...
82
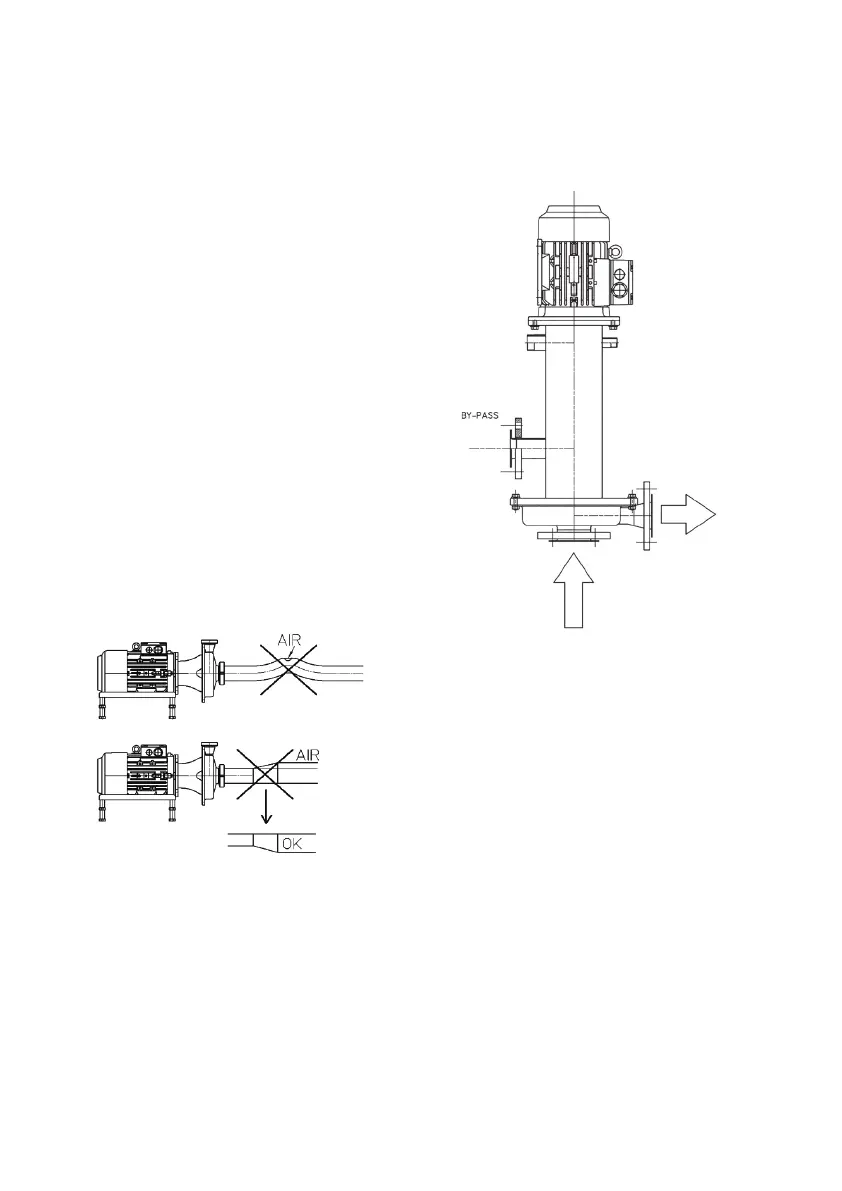
The diameter of the suction pipe should be at
least as great as the inlet diameter of the pump.
In order to prevent cavitation, the suction pipe
should have a hydraulic resistance that is as low
as possible. This means it should be as short
as possible, contain no lters and the minimum
number of bends possible. Bends should have a
large radius. When there is a bend at a distance
less than 0.5 m or 8 times the suction diameter
before the pump, the pump’s efciency can be
inuenced.
All valves in the suction pipe should be full bore.
When there is a possibility the storage tank con-
tains particles, the connection of the suction pipe
on the tank must be at least 1.5 times the diam-
eter of the suction pipe above the bottom of the
tank. It is recommended to also put a screen
in those situations. In no way should the liquid
coming into the pump contain particles of more
than 0.25 mm. (Except for VPC, VDK, MFF, MWP
and IFF pumps, which are suited to circulate food
particles.) When the liquid may contain particles,
this must be mentioned when ordering the pump
in order to select the right mechanical seal.
To prevent air traps, the suction pipe must con-
tain no bridges (a part of a pipe that has both
ends lower than the middle) and should have
an ascending gradient of 1 % toward the pump.
Pipe reducers should be of an eccentric type
and installed so that no air can be trapped (not
for MSP, CRP, PRP and IRP). Install the suction
pipe in a way that the liquid ows automatically
into the pump. (Not for self-priming pumps MSP)
If the level of the liquid in the suction vessel is
less than 8 times the diameter of the suction pipe
above the inlet of the pump, an anti-vortex device
has to be installed in the suction pipe to prevent
air from being drawn into the pump.
For pumps with a drain valve on the pump casing,
this drain must be connected to a piping thats
pressureless in order to guarantee draining of
the pump. If the drain valve is operated electri-
cally or pneumatically, the operation of the drain
valve must be integrated in the control circuit of
the installation or machine in which the pump
is integrated.
The length and diameter of the discharge pipe
will determine the operating point of the pump.
The pump selection is based on the information
given together with the inquiry. It is therefore
important that the discharge pipe work installa-
tion is carried out according to the same plans
as those used for the pump selection. It is rec-
ommended to install a pressure gauge directly
on the outlet of the pump.
For the externally mounted pumps in the series
NPIMO, ICPIMO and MCPIMO there is a by pass

Related product manuals