EasyManua.ls Logo

Palazzetti MELISSA - SCARICO FUMI

Palazzetti MELISSA
104 pages
Print Icon
To Next Page IconTo Next Page
To Next Page IconTo Next Page
To Previous Page IconTo Previous Page
To Previous Page IconTo Previous Page
Loading...
32/104 cod. 004770763 - 11/2010 ECOFIRE SCRICCIOLA
IT
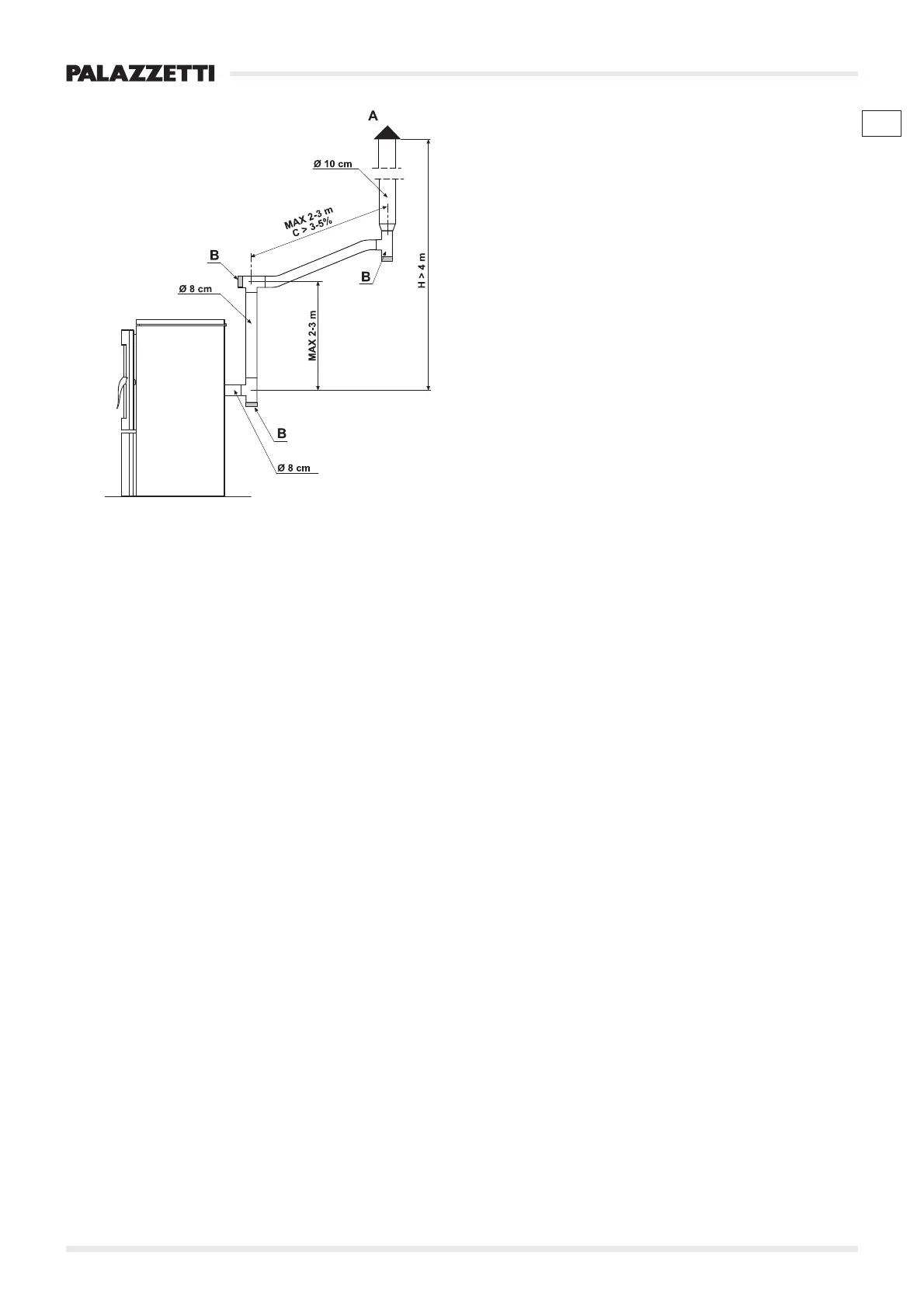
Fig. 5.5-1
!
Nel caso in cui nella stanza dove è ubicata la stufa
siano presenti e funzionanti uno o più ventilatori di
estrazione (cappe di aspirazione) si potrebbero
verificare malfunzionamenti alla combustione
causati dalla scarsità di aria comburente.
5.5 SCARICO FUMI
!
La stufa funziona con la camera di combustione in
depressione è indispensabile assicurarsi che lo
scarico sia a tenuta ermetica.
- Dopo aver scelto il luogo adatto per l’installazione
e considerando le misure riportate nel paragrafo
5.3, individuare il percorso della tubazione di
scarico dei fumi.
- I tubi da utilizzare per lo scarico dei fumi devono
essere rigidi in acciaio alluminato verniciato
(spessore minimo 1,5 mm) o in acciaio inox
(spessore minimo 0,5 mm) con diametro
nominale di 8 cm con guarnizioni (fino a 5 metri di
percorso) o di 10 cm con guarnizioni (con percorsi
superiori a 5 metri) (Fig. 5.5-1).
È consigliato isolare la tubazione con materiale
isolante (lana di roccia con uno spessore minimo
di 2 cm) oppure utilizzare tubi in acciaio a doppia
parete, escluso eventualmente il primo tratto
verticale se interno.
!
- È obbligatorio realizzare un primo tratto verticale
di 1,5 metri minimi per garantire la corretta
espulsione dei fumi.
Si consiglia di effettuare un massimo di 5/6 variazioni
di direzione utilizzando delle curve a 45-9 o dei
raccordi e Tee.
- Utilizzare sempre un raccordo a Tee con tappo di
ispezione ad ogni variazione orizzontale e verticale
del percorso di scarico fumi.
- I tratti orizzontali devono avere una lunghezza
massima di 2-3 m con una pendenza verso l’alto
del 3-5%.
- Ancorare le tubazioni con appositi collari alla
parete.
!
Il raccordo di scarico dei fumi NON DEVE ESSERE
collegato:
- ad una canna fumaria utilizzata da altri
generatori (caldaie, stufe, caminetti, ecc....);
- a sistemi di estrazione d’aria (cappe, sfiati,
ecc....) anche se “intubato”.
!
È vietato installare valvole di interruzione e di tiraggio.
!
Con un percorso di scarico fumi superiore a 5 metri
e in condizioni di scarso tiraggio (presenza di molte
curve, terminale di scarico inadeguato, ecc.)
l’espulsione dei fumi può non essere ottimale. In
questi casi sarà necessario effettuare la variazione
dei parametri di funzionamento (espulsione fumi e
carica pellet) per adattare la stufa alle reali
caratteristiche impiantistiche della canna fumaria.
Contattare il servizio di assistenza tecnica.
A) Comignolo antivento
Windproof chimney top
Windschutz-Schornstein
B) Ispezione, Inspection, Inspektion
C) Pendenza, Slope, Neigung
H) Altezza, Height, Höhe

Table of Contents

Related product manuals