EasyManua.ls Logo

Panasonic CS-A18BTP

Panasonic CS-A18BTP
111 pages
To Next Page IconTo Next Page
To Next Page IconTo Next Page
To Previous Page IconTo Previous Page
To Previous Page IconTo Previous Page
Loading...
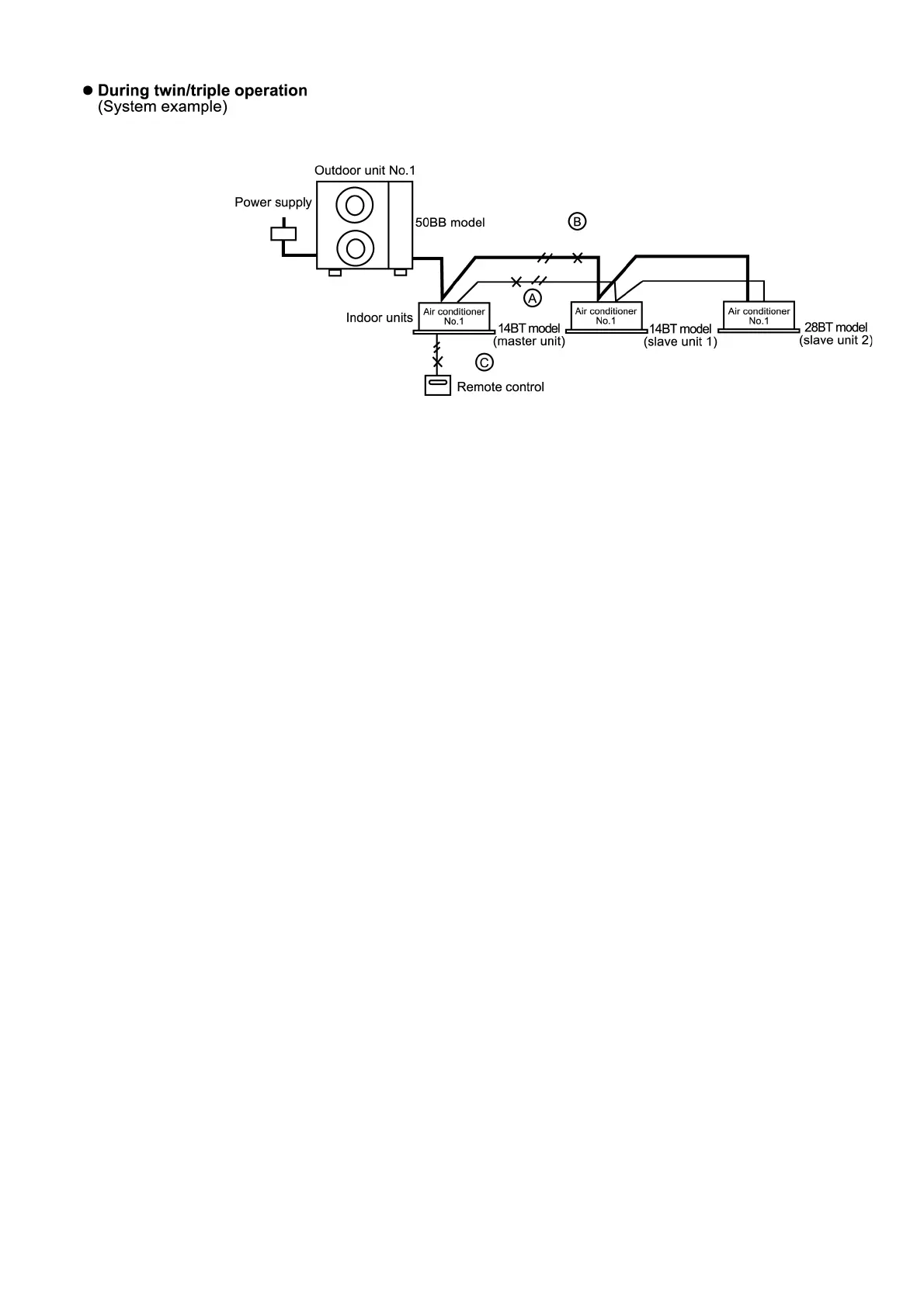
1. The main power is turned on while the transmission
wires between the indoor unit(s) are not connected
(open circuit at section A)
Symptom:
Nothing abnormal appears on the remote control
display. If operation is started in this condition, the
combination of the 50BB outdoor unit and the 14BB4
indoor unit (master unit) will result in abnormal
operation.
If operation continues, an abnormality will occur on the
refrigeration cycle and operation will stop.
Remote control... CHECK flashes
Indoor unit (master)... The LEDs on the printed
circuit board flash and operation stops
Indoor unit (slave)... LED1 on the printed circuit
board illuminates and the unit does not operate at all
Outdoor unit... The LEDs on the printed circuit board
flash and operation stops
2. The main power is turned on while the power supply
wires between the indoor unit(s) are not connected
(open circuit at section B)
Symptom:
Same as above. If operation continues, an abnormality
will occur on the refrigeration cycle and operation will
stop.
Remote control... CHECK flashes
Indoor unit (master)... The LEDs on the printed
circuit board flash
Indoor unit (slave)... The LEDs on the printed circuit
board do not illuminate and the unit does not
operate at all
Outdoor unit... The LEDs on the printed circuit board
flash and operation stops
3. The main power is turned on while the remote control
connection cord is not connected (open circuit at section
C)
Symptom:
Remote control unit.. . Display of No power supply
Indoor unit (master)... LED1 on the printed circuit
board stays illuminated and the unit does not
operate
Indoor unit (slave)... LED1 on the printed circuit
board stays illuminated and the unit does not
operate
Outdoor unit... LED1 on the printed circuit board
stays illuminated and the unit does not operate
Remedy
1. Turn off the main power.
2. Connect the disconnected wires correctly.
3. Turn on the main power.
4. After 1 minute, start the operation using the remote
control.
(Indoor units operation will start according to the remote
control setting.)
(Outdoor unit operation will start after 3-5 minutes.)
If slave units do not operate even after the wiring has been
corrected (automatic addressing is not possible)
1. Check that DIP switches 1 to 4 and DIP switch 8 are all
set to OFF, and then stop operation.
2. Press the ADDRESS RESET button (SW3) at the
outdoor unit for approximately 4 seconds
(The self-diagnosis LEDs 2 to 8 will illuminate in order,
and the system is reset once they are all illuminated.)
The above procedure cannot be used to carry out automatic
address resetting during group control.
55

Related product manuals