EasyManua.ls Logo

Panasonic CS-A18BTP - Emergency Operation

Panasonic CS-A18BTP
111 pages
Print Icon
To Next Page IconTo Next Page
To Next Page IconTo Next Page
To Previous Page IconTo Previous Page
To Previous Page IconTo Previous Page
Loading...
Emergency operation
Emergency operation of outdoor unit
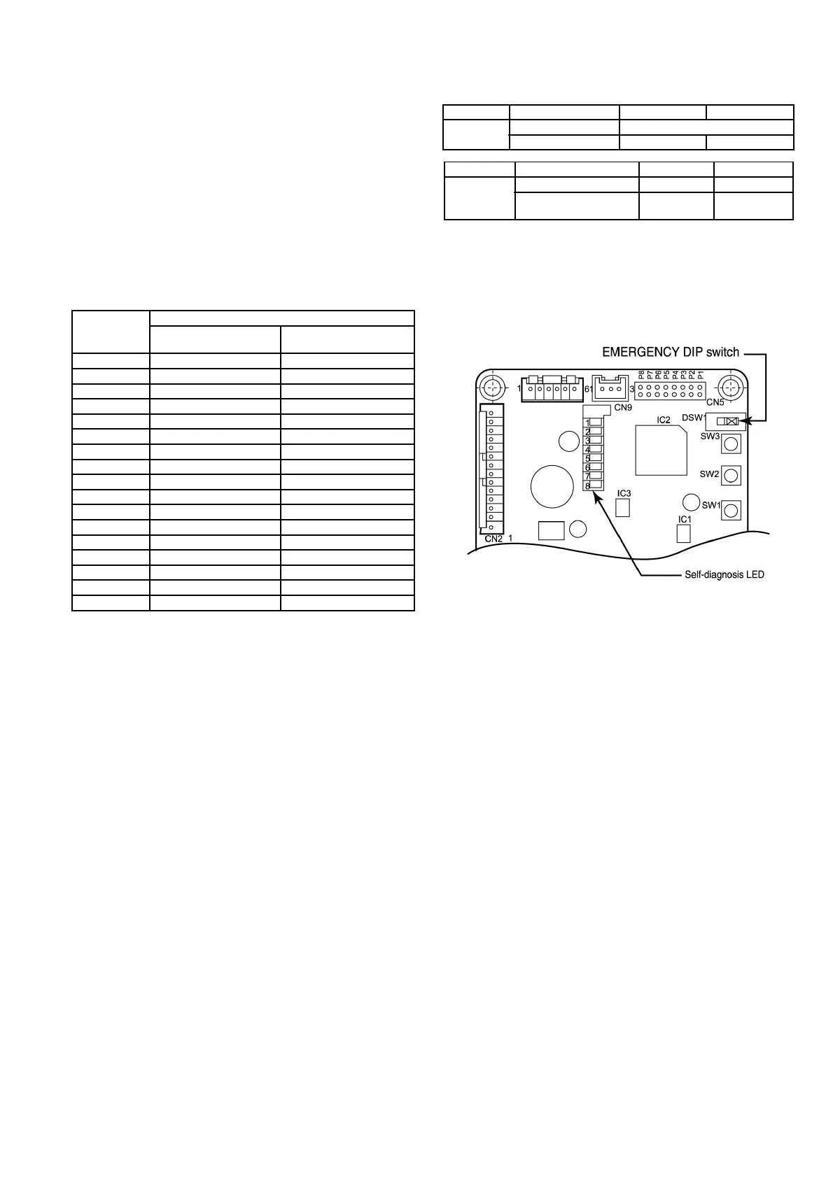
Emergency operation can be carried out by setting the
DSW1 switch on the printed circuit board of the outdoor
unit to the EMERGENCY position. However, emergency
operation is only carried out when an abnormality is
detected by the indoor/outdoor temperature thermistors.
The resistance values of each thermistor are measured
as shown in the table below to determine if there is an
abnormality.
Thermistor resistance table
Temperature Resistance value (k
5%
Room temperature
thermistor
Pipe temperature
thermistor
-20°C 205.8 197.8
-10°C 114.6 111.9
-5°C 87.3 85.4
0°C 67.0 65.8
5°C 51.8 51.0
10°C 40.4 39.9
15°C 31.7 30.7
20°C 25.1 25.0
25°C 20.0 20.0
30°C 16.1 16.0
40°C 10.4 10.6
50°C 6.9 7.1
60°C 4.7 4.9
70°C ---- 3.5
80°C ---- 2.5
90°C ---- 1.8
100°C ---- 1.4
The pipe temperature thermistor resistance value are
the same for the indoor and outdoor units.
<When a thermistor abnormality is judged to have
occurred>
Set only the thermistor which shows an abnormality
to the condition as shown in the table below to carry
out emergency operation.
Thermistor Cooling mode Heating mode
Indoor unit Room temperature Fixed at 25°C
Pipe temperature Shorted Open
Thermistor Cooling mode Heating mode
Outdoor unit Discharge temperature Open Shorted
Heat exchanger outlet
temperature
Shorted Open
Refer to the circuit diagram for the connection
locations for each thermistor.
If there is an abnormality in the room temperature
thermistor, the temperature will be fixed at 25°C
regardless of the remote control display.
NOTE:
Any abnormalities detected by the temperature
thermistors are ignored during emergency operation,
therefore, long-term operation in this mode should
be avoided.
After emergency mode operation has been
completed and normal operation is to be resumed,
turn off the power supplies for the indoor and
outdoor units and set the DSW1 switch to NORMAL
position.
Self-diagnosis LEDs 4 to 6 will flash during
emergency operation.
26 EMERGENCY OPERATION
59