EasyManua.ls Logo

Panasonic CS-A18BTP

Panasonic CS-A18BTP
111 pages
To Next Page IconTo Next Page
To Next Page IconTo Next Page
To Previous Page IconTo Previous Page
To Previous Page IconTo Previous Page
Loading...
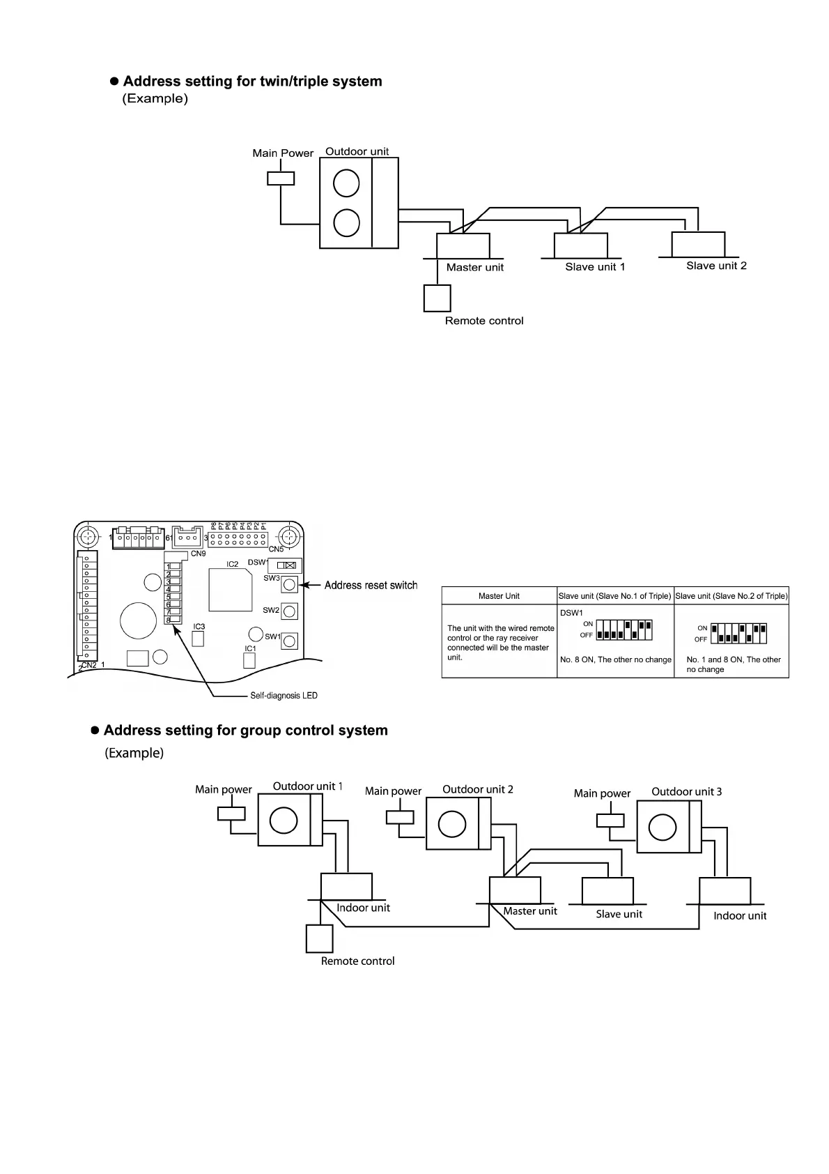
1. Automatic address setting (dont need to set dip-switch)
If the wiring is connected properly as above example, the
address is set automatically by the main power supply. An
indoor unit with remote control will be set as the master. If
the power source is installed to indoor units and outdoor
units separately, turn on the switch by following the
procedure: outdoor unit, then indoor unit with control, and
finally other indoor units.
When the slave units do not operate (when address cannot
be set)
1. Automatic address setting (dont need to set dip-switch)
If the wiring is connected properly as above example, the
AC numbers are set automatically by the main power
supply. An indoor unit with remote control will be set as the
master.
If the power source is installed to indoor units and outdoor
units separately, turn on the switch by following the
Reset the address by following the procedure:
a. After making sure that dip-switches No. 1 to 4 and No.
8 are OFF, stop the operation.
b. Push address reset button (SW3) on the outdoor unit
PC board for 4 seconds. Self-diagnosis LED No. 2 to 8
will start blinking in order. And when all 7 pieces of LEDs
(No. 2 ~ 8) are illuminated, the address for the slave unit
has been reset.
Important: The address for the group control cannot be
reset, using the above mentioned procedure.
2. Manual address setting (by dip-switch DSW1)
When setting the address manually, set the dip-switch of
the PC board of the indoor unit as follows:
procedure: outdoor unit, then indoor unit with control, and
finally other indoor units. The AC number will be set at
random.
When the slave units do not operate (when address cannot
be set)
57

Related product manuals