EasyManua.ls Logo

Panasonic CS-C9CKP - Wiring Diagram

Panasonic CS-C9CKP
82 pages
To Next Page IconTo Next Page
To Next Page IconTo Next Page
To Previous Page IconTo Previous Page
To Previous Page IconTo Previous Page
Loading...
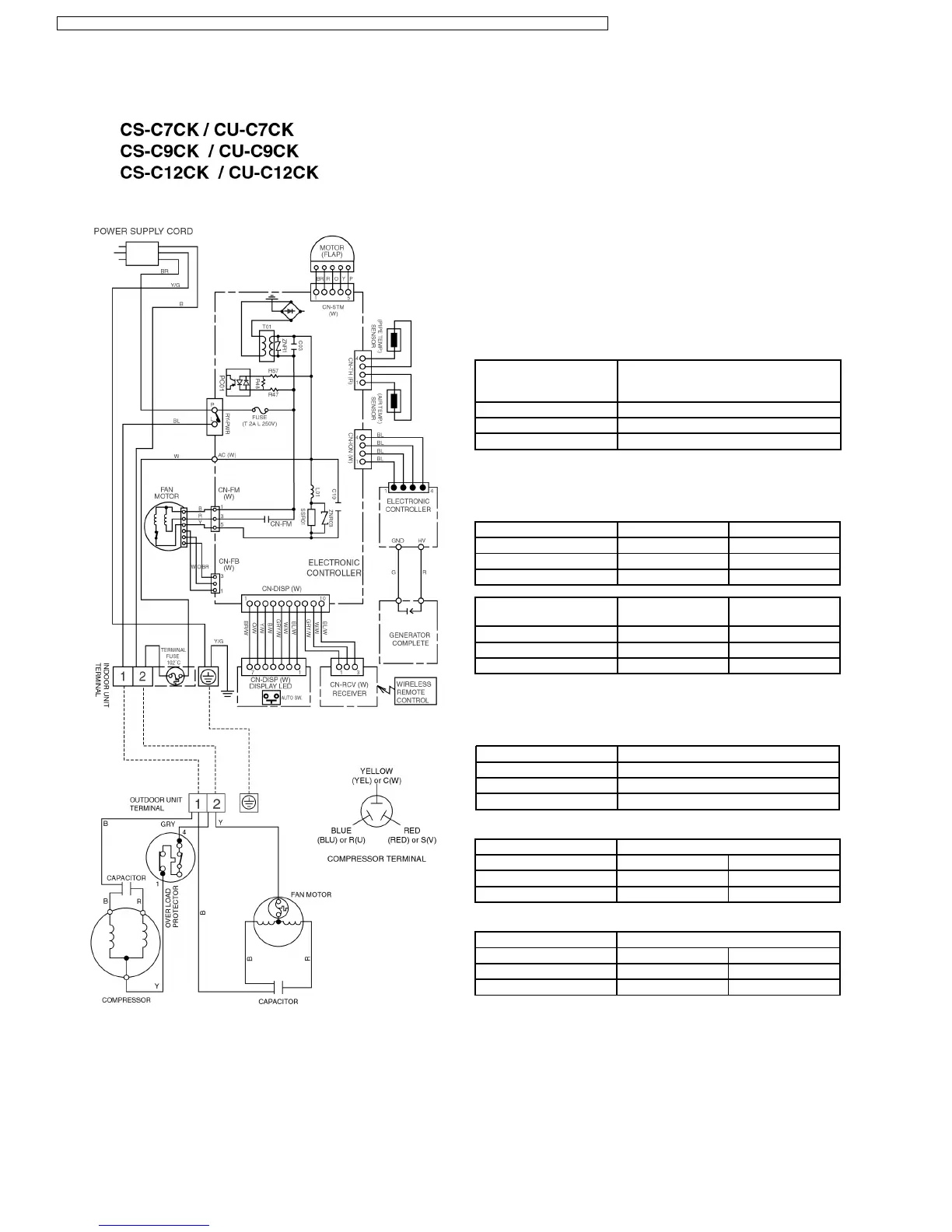
REMARKS
B :BLUE
BR : BROWN
BL : BLACK
G : GREEN
GRY : GRAY
O : ORANGE
P : PINK
R :RED
W : WHITE
Y : YELLOW
Y/G : YELLOW/GREEN
Resistance of Indoor Fan Motor Windings
MODEL CS-C7CK
CS-C9CK
CS-C12CK
CONNECTION CWA921060
BLUE-YELLOW 371.0
YELLOW-RED 386.6
Note: Resistance at 20°C of ambient temperature.
Resistance of Outdoor Fan Motor Windings
MODEL CU-C7CK CU-C12CK
CONNECTION CWA951088 CWA951120
BLUE-YELLOW 217.3 200.4
YELLOW-RED 198.5 252.5
MODEL CU-C9CK
CU-C12CK
CU-C9CK
CONNECTION CWA951128 CWA951118
BLUE-YELLOW 210.7 203.5
YELLOW-RED 196.5 190.3
Note: Resistance at 20°C of ambient temperature.
Resistance of Compressor Windings
MODEL CU-C7CK
CONNECTION 2RS110D5DA04
C-R 5.382
C-S 5.328
Note: Resistance at 20°C of ambient temperature.
MODEL CU-C9CK
CONNECTION 2PS146D3AA04 2R13C236BSC
C-R 3.941 3.298
C-S 3.499 5.500
Note: Resistance at 20°C of ambient temperature.
MODEL CU-C12CK
CONNECTION QJ208PAA 2P19S236A1L
C-R (Main) 3.31 2.237
C-S (Sub) 4.72 2.710
Note: Resistance at 25°C/20°C of ambient temperature.
7 Wiring Diagram
18
CS-C7CKP CU-C7CKP5 / CS-C9CKP CU-C9CKP5 / CS-C9CKP CU-C9CKP6 / CS-C12CKP CU-C12CKP5 / CS-C12CKP CU-C12CKP6

Other manuals for Panasonic CS-C9CKP

Related product manuals