EasyManua.ls Logo

Panasonic CS-F50MD1E5 - 4 Refrigeration Cycle

Panasonic CS-F50MD1E5
86 pages
Print Icon
To Next Page IconTo Next Page
To Next Page IconTo Next Page
To Previous Page IconTo Previous Page
To Previous Page IconTo Previous Page
Loading...
8
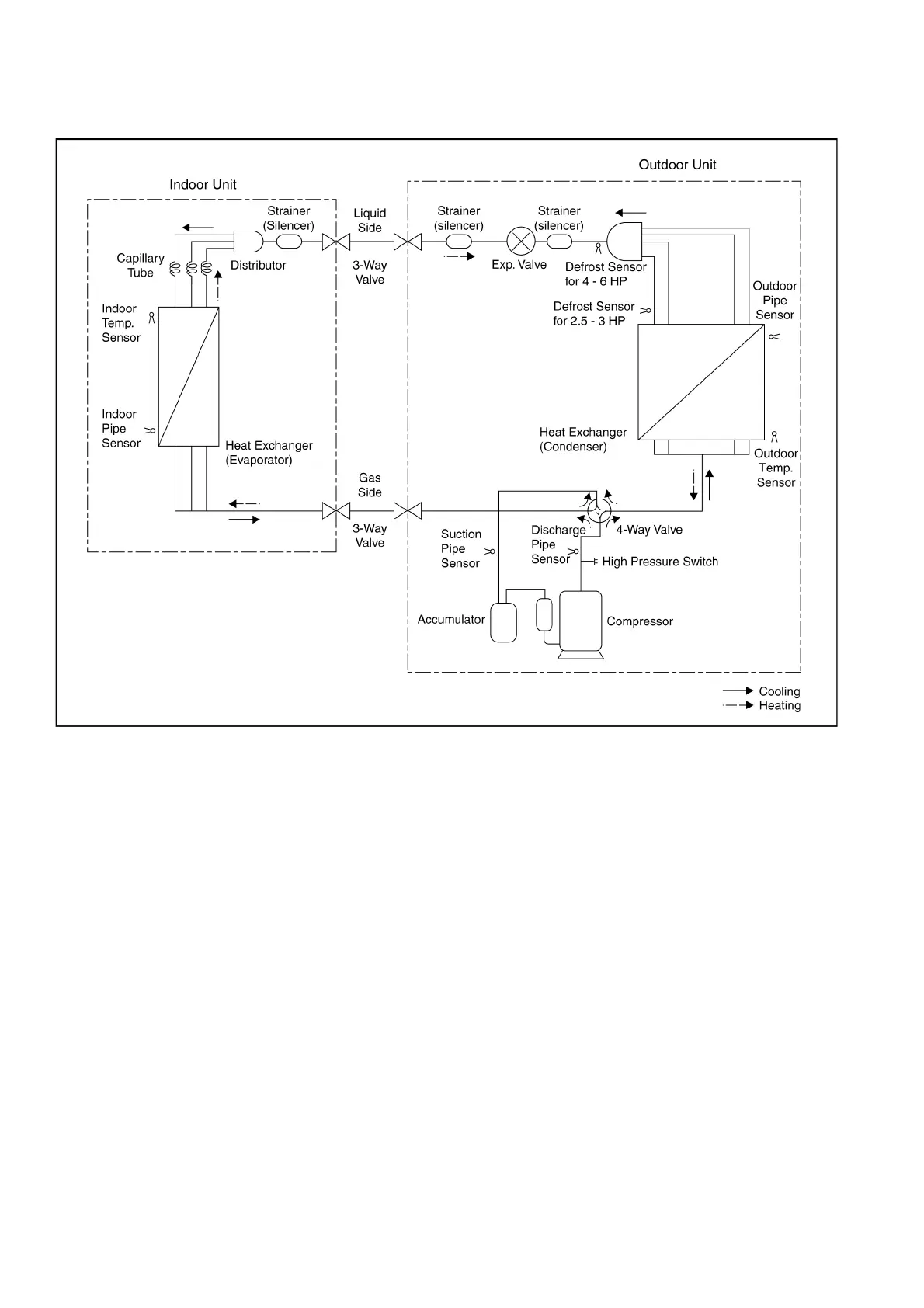
4 Refrigeration Cycle

Related product manuals