EasyManua.ls Logo

Panasonic CS-RE12SKUA - Page 12

Panasonic CS-RE12SKUA
20 pages
To Next Page IconTo Next Page
To Next Page IconTo Next Page
To Previous Page IconTo Previous Page
To Previous Page IconTo Previous Page
Loading...

12.2 Indoor Unit
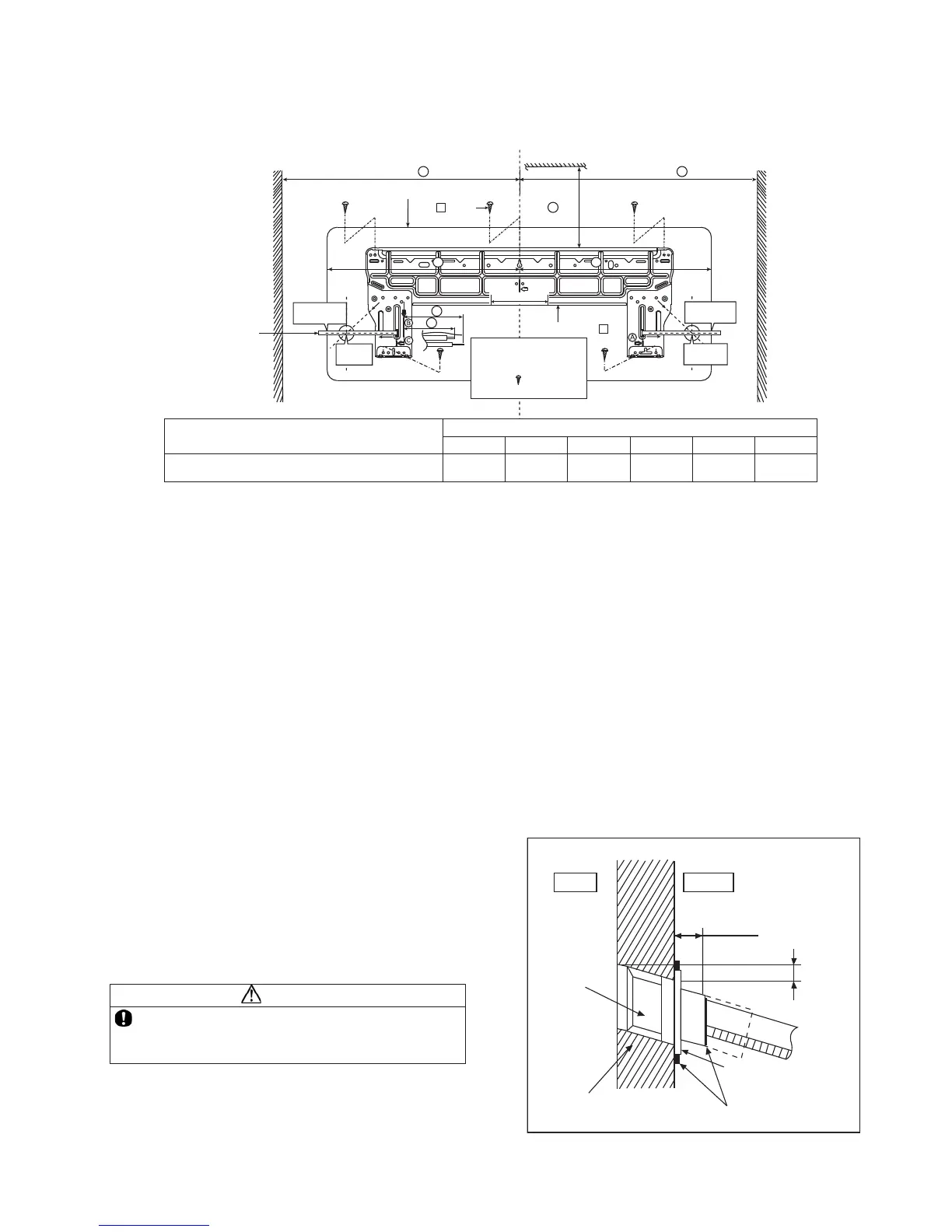
 +RZWR)L[,QVWDOODWLRQ3ODWH
7KHPRXQWLQJZDOOVKDOOEHVWURQJDQGVROLGHQRXJKWRSUHYHQWLWIURPWKHYLEUDWLRQ
3
4
5
6
Wall
Wall
Wall
Installation plate
screw
Measuring
Tape
Indoor unit
9
17
/
32
"
(241.5 mm)
5 1/16"
(128 mm)
5
1
/
16
" (128 mm)
5
1
/
16
"
(128 mm)
More than
9
17
/32"
(241.5 mm)
For best strength of
INDOOR unit installation,
it is highly recommended
to locate “
” at 5 position
as shown.
2
1
More than
2
1
1
More than
0RGHO
'LPHQVLRQ
ƻ
ƻ
ƻ
ƻ
ƻ
ƻ
5(6.8$5(6.8$
´
PP
´
PP
´
PP
´
PP
´
PP
´
PP
7KHFHQWHURILQVWDOODWLRQSODWHVKRXOGEHDWPRUHWKDQ
ƻ
DWULJKWDQGOHIWRIWKHZDOO
7KHGLVWDQFHIURPLQVWDOODWLRQSODWHHGJHWRFHLOLQJVKRXOGPRUHWKDQ
ƻ

)URPLQVWDOODWLRQSODWHOHIWHGJHWRXQLW¶VOHIWVLGHLV
ƻ

)URPLQVWDOODWLRQSODWHULJKWHGJHWRXQLW¶VULJKWLV
ƻ

ƻ
% )RUOHIWVLGHSLSLQJSLSLQJFRQQHFWLRQIRUOLTXLGVKRXOGEHDERXW
ƻ
IURPWKLVOLQH
)RUOHIWVLGHSLSLQJSLSLQJFRQQHFWLRQIRUJDVVKRXOGEHDERXW
ƻ
IURPWKLVOLQH
 0RXQWWKHLQVWDOODWLRQSODWHRQWKHZDOOZLWKVFUHZVRUPRUHDWOHDVWVFUHZV
,IPRXQWLQJWKHXQLWRQWKHFRQFUHWHZDOOFRQVLGHUXVLQJDQFKRUEROWV
o $OZD\VPRXQWWKHLQVWDOODWLRQSODWHKRUL]RQWDOO\E\DOLJQLQJWKHPDUNLQJRIIOLQHZLWKWKHWKUHDGDQGXV
LQJ
DOHYHOJDXJH
 'ULOOWKHSLSLQJSODWHKROHZLWK¡¡PPKROHFRUHGULOO
o /LQHDFFRUGLQJWRWKHOHIWDQGULJKWVLGHRIWKHLQVWDOODWLRQSODWH7KHPHHWLQJSRLQWRIWKHH[WHQGHGOLQ
HLV
WKHFHQWH
URIWKHKROH$QRWKHUPHWKRGLVE\SXWWLQJPHDVXULQJWDSHDWSRVLWLRQDVVKR
ZQLQWKHGLDJUDP
DERYH7KHK
ROHFHQWHULVREWDLQHGE\PHDVXULQJWKHGLVWDQFHQD
PHO\PPIRUOHIWDQGULJKW
KROHUH
VSHFWL
YHO\
o
'ULOOWKHSLSLQJKROHDWHLWKHUWKHULJKWRUWKHOHIWDQGWKHKROHVKRXOGEHVOLJKWO\VODQWLQJWRWKHRXWGRR
U
VLGH
 7R'ULOOD+ROHLQWKH:DOODQG
,QVWDOOD6OHHYHRI3LSLQJ
 ,QVHUWWKHSLSLQJVOHHYHWRWKHKROH
 )L[WKHEXVKLQJWRWKHVOHHYH
 &XWWKHVOHHYHXQWLOLWH[WUXGHVDERXW
PPIURPWKHZDOO
&$87,21
:KHQWKHZDOOLVKROORZSOHDVHEHVXUHWRXVHWKH
VOHHYHIRUWXEHDVVHPEO\WRSUHYHQWGDQJHUV
FDXVHGE\PLFHELWLQJWKHFRQQHFWLRQFDEOH

)LQLVKE\VHDOLQJWKHVOHHYHZLWKSXWW\RU
FDXONLQJFRPSRXQGDWWKHILQDOVWDJH


PP
3XWW\RUFDXONLQJFRPSRXQG
¡
¡PP
WKURXJKKROH
,QGRRU
2XWGRRU
$SSUR[


PP
%XVKLQJIRUWXEH
DVVHPEO\
:DOO
6OHHYH
IRUWXEH
DVVHPEO\

Other manuals for Panasonic CS-RE12SKUA

Related product manuals