EasyManua.ls Logo

Panasonic CS-S18HKH

Panasonic CS-S18HKH
67 pages
To Next Page IconTo Next Page
To Next Page IconTo Next Page
To Previous Page IconTo Previous Page
To Previous Page IconTo Previous Page
Loading...
13
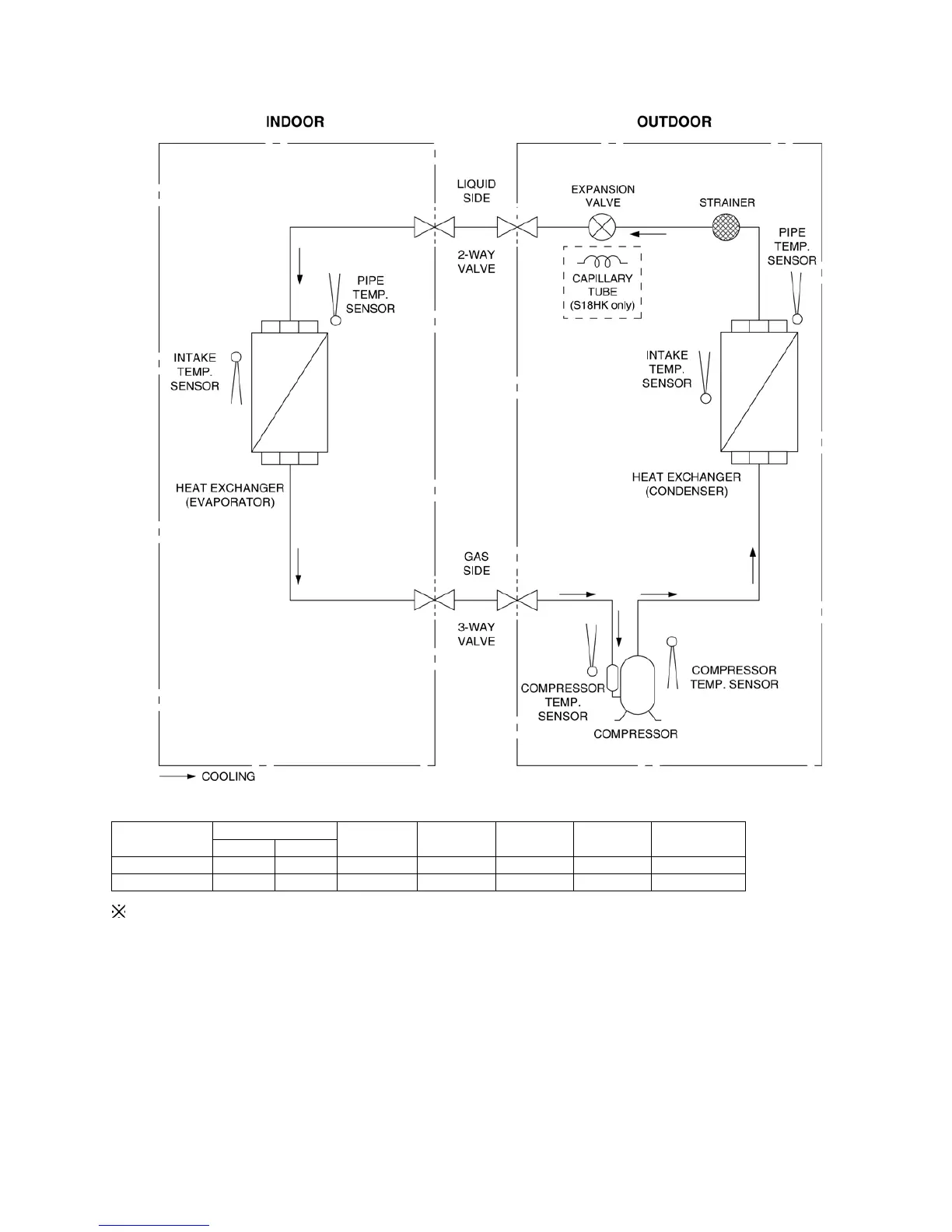
6 Refrigeration Cycle Diagram
If piping length is over rated length, additional refrigerant should be added as shown in the table.
Model
Piping size
Rated Length
(m)
Max.
Elevation (m)
Min. Piping
Length (m)
Max. Piping
Length (m)
Additional
Refrigerant (g/m)
Gas Liquid
S18HKH 1/2” 1/4” 5 15
3
20 15
S24HKH 5/8” 1/4” 5 15
3
20 20

Table of Contents

Related product manuals