EasyManua.ls Logo

Panasonic CS-XZ35XKEW - 10 Electronic Circuit Diagram; Indoor Unit

Panasonic CS-XZ35XKEW
198 pages
To Next Page IconTo Next Page
To Next Page IconTo Next Page
To Previous Page IconTo Previous Page
To Previous Page IconTo Previous Page
Loading...
37
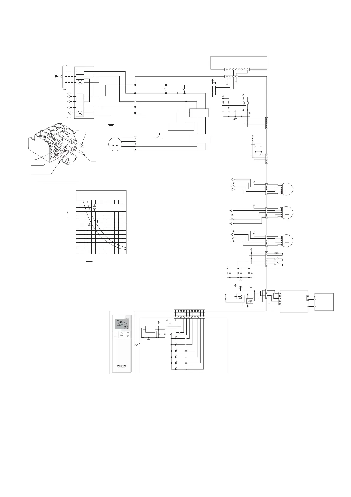
10. Electronic Circuit Diagram
10.1 Indoor Unit
ELECTRONIC CONTROLLER
(MAIN)
CN–RMT
(WHT)
4
1
WWWWWWWWWWW
5
1
CN–CNT
(WHT)
1
7
4
CN−FM
(WHT)
ELECTRONIC
CONTROLLER
(DISPLAY AND
RECEIVER)
CN-DISP (WHT)
1
11
FAN MOTOR
CN−TH
(RED)
PIPING TEMP. SENSOR 1 (THERMISTOR)
WITHOUT FLEXIBLE PIPE (LOWER)
PIPING TEMP. SENSOR 2 (THERMISTOR)
BLACK FLEXIBLE PIPE (UPPER)
SUCTION TEMP. SENSOR (THERMISTOR)
AC308 (BLK)
RY-PWR
RY-PWR2
AC307 (BRW)
AC303 (WHT)
AC304 (RED)
G301 (GRN)
EVAPORATOR
Y/G
Y/G
BL
BR
W
R
G
TERMINAL
BOARD
SINGLE PHASE
POWER SUPPLY
COMMUNICATION
CIRCUIT
NOISE FILTER
CIRCUIT
TO OUTDOOR UNIT
L1
N
2
S1
3
TEMP. FUSE 102°C
FUSE301
T3.15A L250V
GR GR GR
GR
ELECTRONIC CONTROLLER (WIFI MODULE)
CN-WLAN
(BLK)
CN-WLAN
(WHT)
4
1
38
1
RECTIFICATION
CIRCUIT
SW01
CN-DISP (YLW)
M
B
BL
Y
W
R
1
6
111
UP DOWN LOUVER
MOTOR (LOWER)
UP DOWN LOUVER
MOTOR (UPPER)
LEFT RIGHT
LOUVER MOTOR
P
BR
R
O
Y
CN-STM3
(BLU)
5
1
1
M
5
BL
W
B
P
W
BL
W
1
5
1
2
HIGH VOLTAGE
POWER SUPPLY
NANOE ION
GENERATOR
CN2
(WHT)
CN1
(WHT)
CN-NANO
(YLW)
4
1
P
BR
R
O
Y
CN-STM2
(YLW)
5
1
1
M
5
P
BR
R
O
Y
CN-STM1
(WHT)
5
1
1
M
5
Y/G (WITH CORE)
G
Y/G (EVA)
REAR VIEW OF TERMINAL BOARD
BR
W
R
BL
5V
*L5*L6
12V_1
*F301
5V
*C57
*C56
C51
1000p
50V
B1
C52
1000p
50V
B1
R90
10k
R82
10k
5V
C49
NONE
R37
10k
*C45
12V
IC06
116
IC06
125
IC06
107
IC03
161
12V
IC06
152
IC06
161
IC06
143
IC06
134
12V
IC03
IC03
IC03
IC03
15
14
13
12
2
3
4
5
5V
*C28
*R63
C27
1u
16V
B3
R61
20k
1%
C25
1u
16V
B3
R62
15k
1%
G7
12V
G7
S
C
E
B
D
G
*Q21
*Q18
*Q20
*F303
4.7k
10K
50V
100mA
50V
100mA
C
E
B
4.7k
10K
*R112
5V
C202
0.01u
16V
B1
C201
47u
6.3V
KRE
1
2
4
5
3
5V
GND-A
IC201
R210
47
OUT
VCC
@cirPi
@cirPi
GND
*LED204
AK
*LED206
AK
*LED205
AK
*R204
*LED203
AK
*R203
*LED202
AK
*R202
*LED201
AK
*R201
*R205
*R206
5V
GND-A
SEN201
5V
5V
*C401
*R405
*C402
NONE
*R406
NONE
*C403
NONE
REMOTE CONTROLLER
70
60
50
40
30
20
-10 0 10 20 30 40 50
10
0
Resistance (kΩ)
Sensor (Thermistor)
Characteristics
Pipe temp. Sensor
Intake Air Temp. Sensor
Temperature (°C)

Table of Contents

Other manuals for Panasonic CS-XZ35XKEW

Related product manuals